Makléř: Miloslava Kačerová
Telefon: 222 703 ...
E-mail: podpora ...
Zobrazit celý kontaktTelefon: 222 703 030
E-mail: podpora@idealninajemce.cz
Nemovitost nabízí
Ideální nájemce
Lazaretní 925/9, 615 00 Brno
Zobrazit kontakt na RK222 703 030
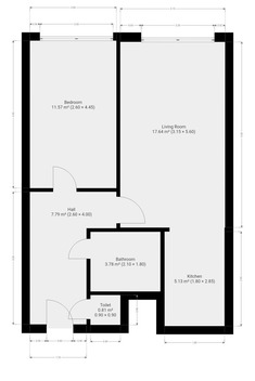
K dlouhodobému podnájmu nabízíme světlý byt o dispozici 2+kk v klidné lokalitě Praha 8 - Kobylisy. Byt o celkové výměře 50 m2 se nachází v 2. patře panelového domu s výtahem. K bytu přísluší zamykatelná komora na chodě. Byt se nabízí volný k zařízení dle vlastních představ. Kuchyňský kout disponuje lednicí s mrazákem, elektrickou troubou, varnou deskou, mikrovlnnou troubou a digestoří. Obývací část obsahuje pohovku, ložnice je nezařízená. V koupelně je vana, umyvadlo a koupelnová skříňka. Toaleta je umístěna samostatně. V okolí domu najdeme restaurace, supermarket, polikliniku s lékárnou, poštu, sportoviště, koupaliště Ládví, Ďáblický háj atd. Pár minut chůze od domu jsou vzdáleny autobusové a tramvajové zastávky umožňující rychlé spojení na metro. Domácí mazlíčci jsou v bytě povoleni. Byt je volný k nastěhování ihned. Energetická třída: G (průkaz nedodán).
Pronájem bytu 2+kk 55 m2 Křižíkova, Praha
Bydlení ve vyhledávané části Prahy - Karlín v cihlovém domě. Tady pro Vás máme bytovou jednotku 2+KK s užitnou plochou 55 m2. Nemovitost se nachází v…
Pronájem bytu 2+kk 45 m, Praha - Nové Město
ID: Alb2kk45 Nabízíme k pronájmu moderní a útulný byt o dispozici 2+kk, který se nachází v klidném a uzavřeném areálu v atraktivní lokalitě Prahy 2,…