Aktuálně můžete v lokalitě Praha vybírat z nabídky 2 167 bytů.
Přehled nemovitostí: pronájem byty > 2+1 Zpět na přehled nabídek

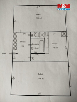
Pronájem bytu 2+1, 57 m2, Praha 10 - Strašnice

Aktivní

neuvedeno

57 m2

družstevní

G - Mimořádně nehospodárná

931378

27.01.2026

Cena: 20000 CZK / objekt / měsíc
Poznámka k ceně: + vratná kauce, provize RK, poplatky 1

Poslat dotaz k nabídce
Zásady používání osobních údajů

Prodejce

Makléř: Mgr. Kalusová Jaroslava

Telefon: 810 300 ...

E-mail: info@mm ...

Zobrazit celý kontakt

Nemovitost nabízí

M&M reality holding a.s.

Krakovská 1675/2, 110 00 Praha 1

www.mmreality.cz

Zobrazit kontakt na RK

Zobrazit všechny nabídky RK

Nabízíme pronájem zajímavého bytu 2+1, 57 m2, po rekonstrukci, v atraktivní lokalitě, ul. Vrátkovská, Praha 10 Strašnice, ve 2.patře (3.podl.), bez výtahu. Vhodný pro nájemníky se zálibou ve starožitném a vintage stylu. Velkou výhodou jsou 2 pokoje (každý o výměře 16,5 m2), se samostatnými vchody, samostatné je i WC a koupelna, dostatek úložného prostoru zajistí vestavěné skříně. V kuchyni je plynový sporák a lednice, k dispozici také pračka. Cihlový dům prošel kompletní rekonstrukcí, včetně zateplení. Okna, orientovaná na západ, jsou plastová. Výborná dostupnost MHD (tram, bus). Například tram 19 z Pražského povstání, zastávka Solidarita, odtud 4 min. V okolí mnoho obchodů, restaurací, hřišť a škol. Nastěhování k 15.2.26. Měsíční nájem je 20 000 Kč, zúčtovatelné poplatky a služby 3 000 Kč, vratná kauce činí 20 000 Kč, stejná částka je i provize RK. Veškeré dotazy zodpovíme.



Nahoru