Makléř: Kukovičová Iveta
Telefon: 800 100 ...
E-mail: info@mm ...
Zobrazit celý kontaktTelefon: 800 100 446
E-mail: info@mmreality.cz
Nemovitost nabízí
M&M reality holding a.s.
Krakovská 1675/2, 110 00 Praha 1
Zobrazit kontakt na RK800 100 446
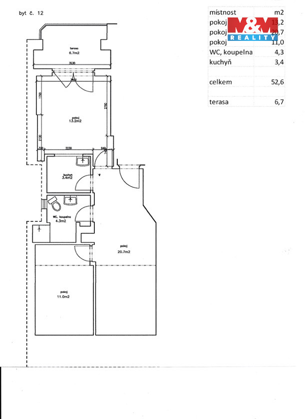
Nabízíme k dlouhodobému pronájmu atypický podkrovní byt 3+1 s terasou ve vyhledávané části pražských Vršovic. Byt je umístěn v 6.NP a nabízí jedinečný výhled na panorama Prahy. Dispozice bytu zahrnuje vstupní halu, která přechází v prostornou místnost, dále ložnici a obývací místnost se vstupem na terasu. Byt je zařízený kuchyňskou linkou se spotřebiči (lednička, el. varná deska, trouba, myčka). Možnost uskladnění kol nebo kočárku v suterénní místnosti domu. Díky své poloze v klidné části Vršovic získáte příjemné bydlení s výbornou dostupností do centra města. V okolí naleznete pestrou nabídku obchodů, služeb, kaváren, restaurací. Sportovní vyžití umožňuje sousedství Heroldových sadů a nedaleké Grébovky. Byt je volný k nastěhování. Neváhejte nás kontaktovat pro více informací.
Pronájem kompletně vybaveného bytu 3+kk Vinohrady, náměstí Jiřího z Poděbrad
Pronájem zcela luxusního a nadstandartního a plně vybaveného klimatizovaného bytu 3kk(137m2) s parkovacím místem v ceně nájmu v mimořádně atraktivní…
Pronájem bytu 3+1, Radhošťská, Vinohrady, 30000 Kč/měs, 96 m2
K dlouhodobému podnájmu nabízíme prostorný byt o dispozici 3+1 v oblíbené lokalitě Praha - Vinohrady. Byt o podlahové ploše 96 m2 se nachází ve 3.…