Aktuálně můžete v lokalitě Praha vybírat z nabídky 2 165 bytů.
Přehled nemovitostí: pronájem byty > 3+kk Zpět na přehled nabídek

Pronájem, Byt 3+kk, Praha 4

68 m2

62 m2

družstevní

D - Méně úsporná

78841

28.01.2026

Cena: 22000 CZK / objekt / měsíc
Poznámka k ceně: + energie a služby, kauce 30.000 Kč 1

Poslat dotaz k nabídce
Zásady používání osobních údajů

Prodejce

Makléř: Ing. Michaela Csizmárová

Telefon: 608 444 ...

E-mail: michael ...

Zobrazit celý kontakt

Nemovitost nabízí

Home Sweet Home

Pařížská 1073/1, 110 00 Praha 1

www.homesweethome.cz

Zobrazit kontakt na RK

Zobrazit všechny nabídky RK

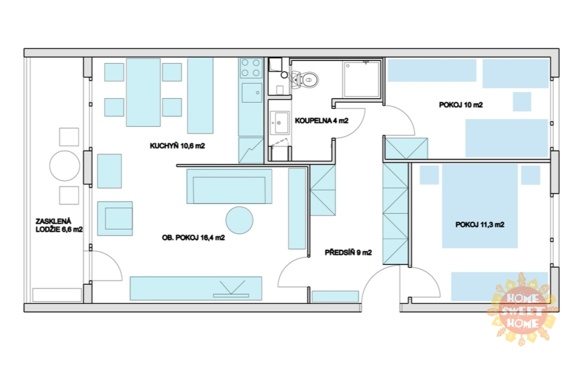
Nabízíme k pronájmu panelákový byt 3+kk umístěný v šestém patře cihlového domu s výtahem v ulici Jílovská, Praha 4. Celková užitná plocha bytu činí 62 m2 + 6 m2 lodžie. Byt je aktuálně vybavený dle fotografií - lze pronajmout i bez vybavení. Sestává z obývacího pokoje s kuchyňským koutem a lodžií, dvou samostatných pokojů, koupelny s WC a sprchou. Byt je po částečné rekonstrukci (koupelna a kuchyně). Vytápění a ohřev vody je centrální. Kuchyně je vybavena sklokeramickou varnou deskou a el. troubou, chladničkou s mrazákem, pračkou. V předsíni jsou původní vestavné skříně. Klidná lokalita. Dostupnost MHD - 170 m autobusová zastávka sídliště Novodvorská (linky autobusů č. 106, 196, 197, 901). Nákupní centrum Novo Plaza, Hypermarket Tesco - 250 m, BILLA, drogerie TETA, pošta, lékárna. Cena nájmu - 22.000 Kč + energie a služby, kauce 30.000 Kč. Prosíme kontaktovat přes poptávkový formulář s uvedením počtu osob a termínu nastěhování.



Nahoru