Makléř: Martina Novotná (Voslářová)
Telefon: 775 316 ...
E-mail: m.novot ...
Zobrazit celý kontaktTelefon: 775 316 656
E-mail: m.novotna@home4people.cz
Nemovitost nabízí
HOME 4 PEOPLE, a.s.
Nádražní 47/90, 150 00 Praha 5
Zobrazit kontakt na RK734 177 127
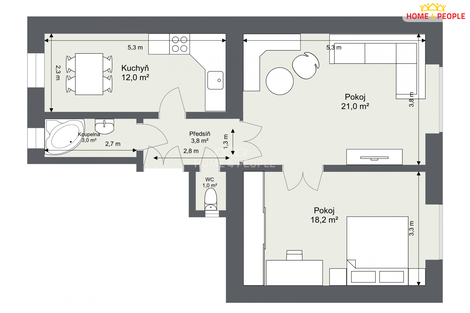
Zprostředkujeme Vám ve výhradním zastoupení majitele dlouhodobý pronájem prostorného bytu 2+1 o velikosti 59m2. Byt se nachází ve druhém patře v historického činžovního domu bez výtahu. Kuchyňská linka je vybavena pouze plynovým sporákem. Možnost zabudování myčky. Obývací pokoj a ložnice jsou bez vybavení. V koupelně je prostorná rohová vana, WC je zvlášť. Vytápění je zajištěno novým plynovým kotlem Bosch. Orientace bytu je na západ - ložnice a obývací pokoj, kuchyň je na východ. V okolí je občanská vybavenost. Klidná ulice pár kroků od Pražské náplavky na nábřeží. V blízkosti domu je zastávka TRAM na Rašínově Nábřeží, 5.minut pěšky metro Palackého Náměstí. V této tradiční rezidenční lokalitě najdete také síť obchodů a služeb, mateřskou i základní školu i zdravotnické zařízení. Neváhejte mě kontaktovat pro více informací nebo prohlídku. Byt je volný ihned k nastěhování. Poplatky za energie - převod na nájemce (elektřina cca 1500,-Kč a plyn cca 2500,-kč), voda, popelnice, úklid 795,-Kč/ 1 osoba. Pronajímatel si vyhrazuje právo vybrat zájemce na základě jím zvolených kritérií. Byt je vhodný pro jednu osobu či pár. Preferujeme nekuřáky. Na všechny emaily bude odpovězeno, prosím kontrolu složky spam. Budu se těšit na prohlídce. Ev. číslo: 32094. Energetický štítek: G (1 kWh/m2/rok).
Pronájem, Byt 2+1, Praha 4
Nabízíme k pronájmu krásný, zařízený byt 2+1 s lodžií (3m2) o celkové rozloze 56 m2, který se nachází ve třetím patře panelové budovy v ulici…
Pronájem 2+1, 64m2,Na Farkáně III, Radlice,Praha 5
Nabízíme k pronájmu zrekonstruovaný byt 2+1,64m2. Praha 5 - Radlice, ul. Na Farkáně III. Byt se nabízí jako částečně zařízený. K dispozici je…