Aktuálně můžete v lokalitě Praha vybírat z nabídky 2 170 bytů.
Přehled nemovitostí: pronájem byty > 2+kk Zpět na přehled nabídek

Pronájem, Byt 2+kk, Praha 6

65 m2

65 m2

osobní

C - Úsporná

N00377

30.01.2026

Cena: 23000 CZK / objekt / měsíc
Poznámka k ceně: +4.785,- zálohy na služby a energie 1

Poslat dotaz k nabídce
Zásady používání osobních údajů

Prodejce

Makléř: Jiří Šimon nájem

Telefon: 737 447 ...

E-mail: najem@j ...

Zobrazit celý kontakt

Nemovitost nabízí

RE | Partners

Národní 364/39, 110 00 Praha 1

www.repartners.cz

Zobrazit kontakt na RK

Zobrazit všechny nabídky RK

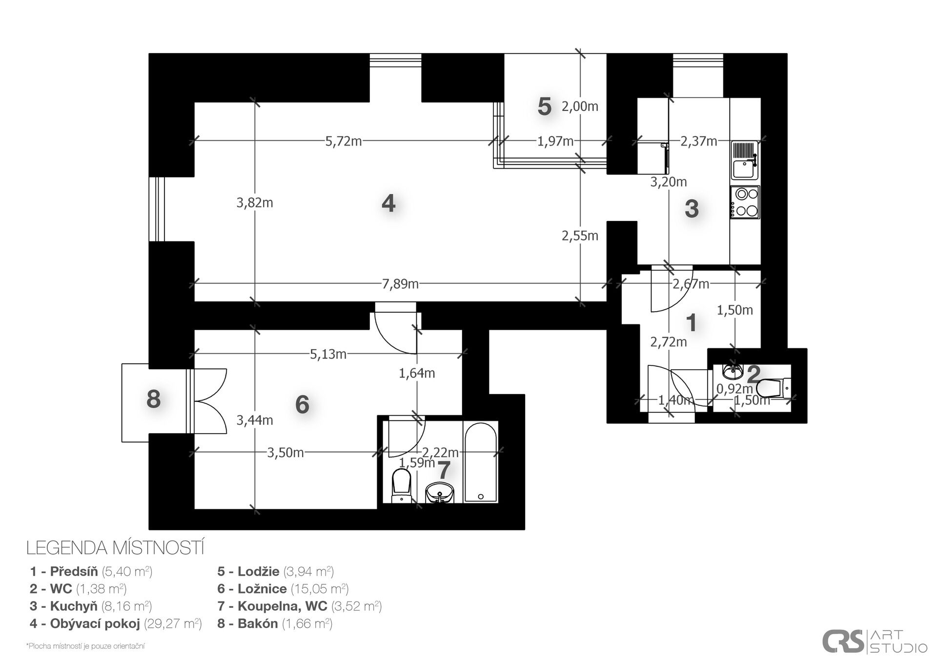
Nabízím vám velký moderní byt 2+kk k pronájmu s výměrou 65 m2 + terasa + vlastní parkovací stání za plotem v ulici Drnovská 20/45, Praha 6 - Ruzyně. Byt se nachází v prvním patře (druhé nadzemní podlaží) historického, opraveného bytového domu po kompletní revitalizaci. Byt obsahuje velký obývací pokoj s kuchyňským koutem, a plně vybavenou kuchyní, krytou terasu, ložnici, chodbu, koupelnu a wc. Nájemné je 23.000,- Kč / měsíčně + zálohy na 4.785,- zálohy na energie a služby vč. elektřiny a plynu. Přesný rozpis je uveden ve fotografiích u této nabídky. Byt je v perfektním stavu a jedná se o velmi dobře udržovaný byt po rekonstrukci. Byt bude volný k nastěhování od 1.4.2026. Stav a vybavení bytu odpovídá tomu, jak je uveden na fotkách. Při nastěhování se platí 27.785,- nájemné na první měsíc + 27.785,- kauce + 27.785,- provize.



Nahoru