Aktuálně můžete v lokalitě Praha vybírat z nabídky 2 167 bytů.
Přehled nemovitostí: pronájem byty > 3+1 Zpět na přehled nabídek

Pronájem bytu 3+1 s lodžií, 69 m2 + lodžie 6 m2, Praha 8 - Kobylisy

neuvedeno

neuvedeno

osobní

G - Mimořádně nehospodárná

N00493

30.01.2026

Cena: 22500 CZK / objekt / měsíc
Poznámka k ceně: + 4544,- zálohy na energie a služby 1

Poslat dotaz k nabídce
Zásady používání osobních údajů

Prodejce

Makléř: Jiří Šimon nájem

Telefon: 737 447 ...

E-mail: najem@j ...

Zobrazit celý kontakt

Nemovitost nabízí

ORANGE PROPERTY s.r.o.

Kaprova 42/14, Praha

Zobrazit kontakt na RK

Zobrazit všechny nabídky RK

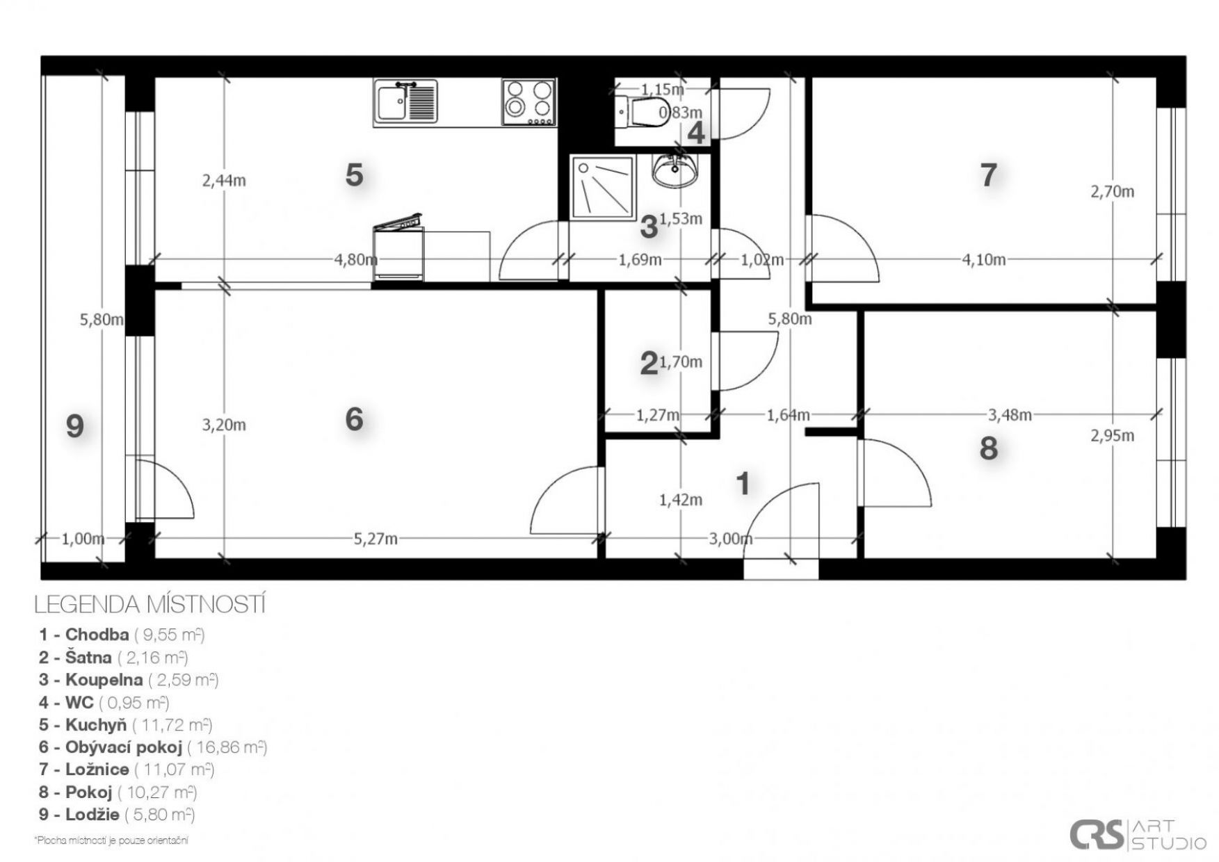
Nabízíme k pronájmu byt 3+1 s lodžií o podlahové ploše 69 m + lodžie 6 m + komora 1 m, v atraktivní lokalitě Praha 8 Kobylisy, ulice Třeboradická 1069/35. Byt má prakticky řešenou dispozici: obývací pokoj propojený s velkou kuchyní, dvě samostatné ložnice, koupelnu, samostatné wc, komoru v bytě, předsíň a komoru na chodbě před bytem. Největší předností je, že byt prošel rekonstrukcí a je ve velmi dobrém stavu. Lokalita nabízí skvělou občanskou vybavenost a výbornou dopravní dostupnost. V okolí najdete obchody, restaurace, služby i možnosti sportu a relaxu. Do centra se dostanete rychle MHD i autem. Kromě vybavené kuchyně, sedačky a skříně není vybavený, tak jak je vyobrazeno na fotografiích. Nájemné je 22.500,- Kč / měsíčně + zálohy na 4.544,- zálohy na energie a služby, které se skládají z: 950,- / měs. studená voda 1400,- / měs. teplá voda 1879,- / měs. topení 75,- / měs. úklid společných částí domu 47,- /měs. elektřina společných částí domu 70,- / měs. výtah 83,- /měs. odvoz odpadků 40,- / měs. televizní anténa Odběr elektřiny v bytě bude převeden na nájemníka. Byt je připravený k nastěhování. Při nastěhování se platí 27.044,- nájemné na první měsíc + 27.044,- kauce + 27.044,-provize.




Pronájem bytu 3+1 Praha 8, Kobylisy na Eurobydleni.cz


Nahoru