Makléř: Jan Bahorec
Telefon: 775 365 ...
E-mail: jan.bah ...
Zobrazit celý kontaktTelefon: 775 365 366
E-mail: jan.bahorec@rkevropa.cz
Nemovitost nabízí
EVROPA realitní kancelář
Václavské nám. 806/62, 110 00 Praha 1
Zobrazit kontakt na RK
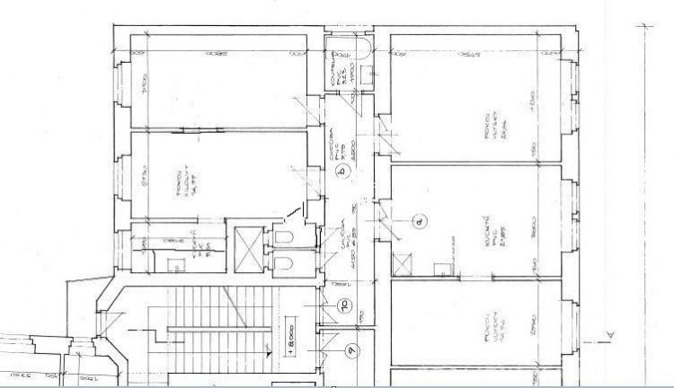
Nabízíme k pronájmu prostorný a světlý byt 5+kk, o celkové podlahové ploše 120m2, který prošel před pár lety rekonstrukcí. Byt se nachází ve 3 NP, s výtahem do mezipatra domu. Skládá se z velké vstupní předsíně (chodby), která je středem bytu, a z které se viz přiložený půdorys vstupuje do obytných místností. Dispozice celkem pěti prostorných pokojů, z toho tři jsou samostatné a neprůchozí (vhodné pro spolubydlení) a dva jsou průchozí (obývací pokoj) a pokoj užívaný historicky jako velká jídelna, který je průchozí do menšího prostoru kuchyně, která je vybavená menší kuchyňskou linkou (kombinovaný sporák, plynová varná deska, místo pro případnou myčku nádobí. Koupelna s vanou, místem pro pračku a vlastním plynovým etážovým kotlem, dále 2x samostatné WC. Podlahy jsou parketové a pvc. Lokalita pražských Vinohrad nabízí perfektní bydlení s s kompletní občanskou vybaveností ( v blízkosti tramvajová zastávka a pěší chůzí dostupné metro Náměstí míru), nedaleko vstupu do Riegrových sadů. Prohlídky možné po domluvě s makléřem. Byte je volný k nastěhování od 1. března 2026. Z důvodu absence PENB uvádíme energetickou třídu G, údaj není relevantní. <a href="https://www.eurobydleni.cz/domy/rodinny-dum/praha-4/obec-lhotka/prodej/"><strong>Prodej rodinného domu Praha 4, Lhotka</strong></a>
P1 Staré Město, Dušní ul., unikátní byt 5 + k.k., balkon, 192 m2, privátní wellness s bazénem
Praha 1 - Staré Město, Dušní ul. nachází se v klidné ulici v nejprestižnější lokalitě v Praze, v těsné blízkosti Staroměstského náměstí a nábřeží…
Pronájem, Byt 5+kk, Praha 9
Vítejte v rezidenčním projektu Bydlení Smetanka, který se nachází v klidné části Prahy 9 - Hrdlořezy, v ulici Mezilehlá. Jedná se o uzavřený…
Pronájem bytu 5+kk Praha 2, Vinohrady na Eurobydleni.cz