Makléř: Yatsenko Anastasiia
Telefon: 296 399 ...
E-mail: info@mm ...
Zobrazit celý kontaktTelefon: 296 399 006
E-mail: info@mmreality.cz
Nemovitost nabízí
M&M reality holding a.s.
Krakovská 1675/2, 110 00 Praha 1
Zobrazit kontakt na RK800 100 446
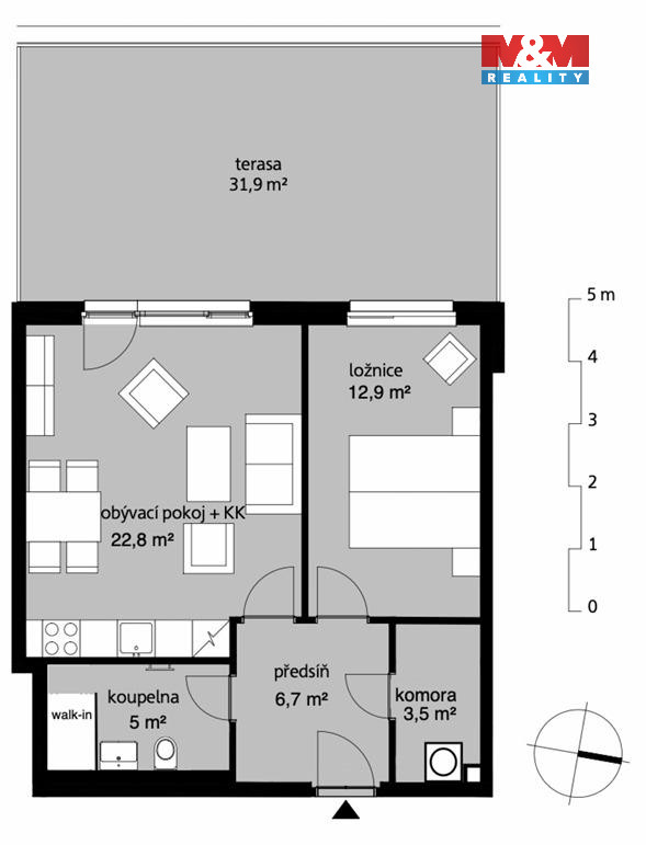
Zcela nový byt 2+kk, 53,2 m2 s terasou 32 m2 a sklepem - bydlení bez kompromisů. Moderní novostavba, 1. patro více než 4 m nad terénem - maximální soukromí a klid, přitom kontakt se zelení. Interiér zaujme na první pohled: pohledové betonové stropy dodávají prostoru industriální eleganci, kvalitní voděvzdorné podlahy a designové dveře s precizním kováním podtrhují nadstandardní provedení. Součástí je walk-in skleněný sprchový kout s podomítkovou baterií a venkovní, elektricky ovládané rolety. Srdcem bytu je nová kuchyňská linka na míru s kamennou pracovní deskou a vestavěnými spotřebiči AEG - ideální místo pro každodenní vaření i večery s přáteli. Byt je zcela nový, dosud neužívaný, vše v záruce. Možnost dokoupení prostorného parkovacího stání v garáži za 490 000 Kč.
Nový pasivní byt 2+kk s předzahrádkou v Terra Barrandov, Praha 5
Terra Barrandov Praha 5, ulice Silurská 2+kk 54,2 m2 s předzahrádkou 67 m2 a terasou 9,1 v 2. patře Orientace bytu: ZS Nabízíme moderní byt 2+kk v…
Exkluzivní prodej prosvětleného bytu 2+kk na pomezí Vinohrad a Žižkova
Hledáte bydlení, které kombinuje prvorepublikovou eleganci s dynamikou moderní Prahy a zároveň nabízí flexibilitu do budoucna? Nabízíme vám…