Makléř: Miloslava Kačerová
Telefon: 222 703 ...
E-mail: podpora ...
Zobrazit celý kontaktTelefon: 222 703 030
E-mail: podpora@idealninajemce.cz
Nemovitost nabízí
Ideální nájemce
Lazaretní 925/9, 615 00 Brno
Zobrazit kontakt na RK222 703 030
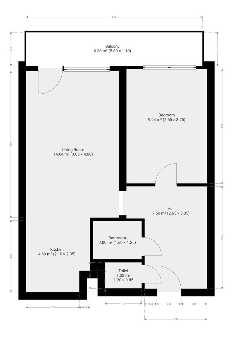
K dlouhodobému podnájmu nabízíme nezařízený byt o dispozici 2+kk, 43m2 s vlastní sklepní kójí a velkou zasklenou lodžií. Byt se nachází ve 3. patře panelového domu s výtahem. Prošel částečnou rekonstrukcí a kompletní výměnou kuchyňské linky. Skládá se ze vstupní chodby s velkou vestavnou šatní skříní, ložnice, koupelny zařízené vanou, pračkou a umyvadlem a oddělené toalety. Obývací pokoj se vstupem na zasklenou lodžii je společný s kuchyňským koutem. Kuchyně je vybavena lednicí, plynovým sporákem a digestoří. Byt se nachází v lokalitě s veškerou občanskou vybaveností doslova u domu, jen pár kroků od stanice metra C - Střížkov Přímo v lokalitě je také hned několik základních a mateřských škol, venkovní posilovny a dětská hřiště, menší obchody s potravinami, lékárny atd. Zálohové platby už obsahují zálohy na elektřinu, plyn a pojištění domácnosti. Byt je k dispozici od 1.5.2026.
REZERVOVÁNO / Pronájem bytu 2+kk, terasa (64,8m2), parkovací místo, sklep, MARINA ISLAND, Praha 7 -
REZERVOVÁNO / Pronájem kompletně vybaveného, nového, designového a prostorného bytu 2+kk (64,8m2) s terasou a okouzlujícími výhledy na Vltavu a…
Pronájem, Byt 2+kk, Praha 3
Rádi bychom Vám nabídli k pronájmu nezařízený byt 2kk (50 m2), který se nachází ve 3 nadzemním podlaží cihlového domu s výtahem, v ulici Lucemburská,…