Aktuálně můžete v lokalitě Praha vybírat z nabídky 2 345 bytů.
Přehled nemovitostí: pronájem byty > 3+kk Zpět na přehled nabídek

Novostavba 3+kk / 2x balkon, garáž Praha 4, Kunratice, ul. Za Valem pronájem

83 m2

88 m2

osobní

C - Úsporná

000453

14.03.2026

Cena: 32000 CZK / objekt / měsíc
Poznámka k ceně: včetně garáž. stání + poplatky 4.000, Kč (2 os.) + elektřina, internet 1

Poslat dotaz k nabídce
Zásady používání osobních údajů

Prodejce

Makléř: Ing. Hrubcová Andrea

Telefon: 420 604 ...

E-mail: quickse ...

Zobrazit celý kontakt

Nemovitost nabízí

Agentura Quick Service

Kolínská 1722/16, 130 00 Praha 3 - Vinohrady

www.aqsreality.cz

Zobrazit kontakt na RK

Zobrazit všechny nabídky RK

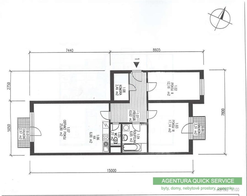
Prostorný byt 3+kk (82 m2) se 2 balkony (3 m2 a 2,3 m2) na JZ a SV ve 2. patře novostavby v těsné blízkosti Kunratického lesa v nové zástavbě "Zelené údolí". K bytu náleží garážové stání a sklep. Nezařízeno, vybaveno kuchyňskou linkou se sklokeramickou varnou deskou, troubou, digestoří a myčkou. Součástí bytu velká komora/šatna. Velmi dobrá dispozice bytu samostatné dva pokoje (17 m2 a 12 m2), prostorný obývací pokoj s kuch. koutem (31 m2) a balkonem. Koupelna s vanou, WC zvlášť. Plovoucí podlahy, rolety a žaluzie v oknech. Kabelová TV v domě Vodafone/02. V domě kolárna. Přírodní lokalita oblíbená zejména pro klidné bydlení a možnosti sportovních aktivit. Dobrá dostupnost autobusem na metro C (Kačerov, Budějovická); do 20 min. v centru. Volné ihned. Poplatky včetně tepla při 2 os. 4.000,Kč/měs. + elektřina bytu, internet



Nahoru