Aktuálně můžete v lokalitě Praha vybírat z nabídky 2 345 bytů.
Přehled nemovitostí: pronájem byty > 3+kk Zpět na přehled nabídek

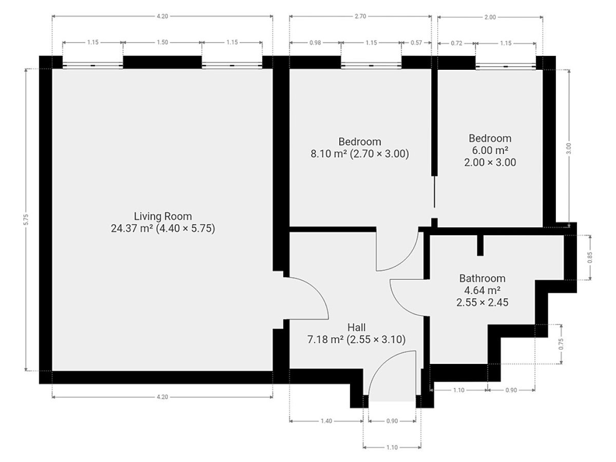
Pronájem bytu 3+kk, V lesíčku, Smíchov, 25900 Kč/měs, 51 m2, Praha

51 m2

51 m2

osobní

G - Mimořádně nehospodárná

N7279

15.03.2026

Cena: 25900 CZK / objekt / měsíc
Poznámka k ceně: vratná jistota, náklady na bydlení 4 923 Kč, poplatek za podnájem 1

Poslat dotaz k nabídce
Zásady používání osobních údajů

Prodejce

Makléř: Miloslava Kačerová

Telefon: 222 703 ...

E-mail: podpora ...

Zobrazit celý kontakt

Nemovitost nabízí

Ideální nájemce

Lazaretní 925/9, 615 00 Brno

idealninajemce.cz

Zobrazit kontakt na RK

Zobrazit všechny nabídky RK

K dlouhodobému podnájmu nabízíme světlý byt o dispozici 3+kk v jedné z nejoblíbenějších částí Prahy 5 - Smíchov, v ulici V lesíčku. Byt o celkové výměře 51 m2 se nachází v 5. patře udržovaného zděného domu s výtahem. Dispozice bytu nabízí prostorný obývací pokoj s kuchyňským koutem a dvě menší samostatné místnosti, které mohou sloužit například jako ložnice, pracovna nebo pokoj pro hosty. Toto řešení je ideální pro jednotlivce či pár, kteří ocení možnost odděleného pracovního prostoru nebo šatny. Kuchyňský kout je vybaven lednicí s mrazákem, myčkou, elektrickou troubou, varnou deskou, mikrovlnnou troubou a digestoří. Součástí obývací části je knihovna. V jedné z místností je k dispozici vestavěná skříň, druhý pokoj je nezařízený a nabízí možnost využití podle potřeb nového nájemníka. V koupelně se nachází sprchový kout, umyvadlo se zrcadlem, pračka a toaleta. V předsíni je věšák a vestavěná skříň poskytující další úložný prostor. Velkou výhodou bytu je především jeho poloha. Lokalita Smíchova nabízí kompletní občanskou vybavenost v bezprostředním okolí - restaurace, kavárny, supermarkety, drogerie, poliklinika, lékárna či Obchodní centrum Nový Smíchov. V pěší vzdálenosti jsou také oblíbené parky a zelené plochy, například Zahrada Kinských, Petřínské sady nebo park Sacré Coeur. Pár minut chůze od domu se nachází tramvajová a autobusová zastávka Švandovo divadlo a v docházkové vzdálenosti je stanice metra B - Anděl, která zajišťuje výborné spojení do centra města. Majitel preferuje zájemce bez domácích mazlíčků. Byt je volný k nastěhování ihned. Prohlídky jsou možné po domluvě. V případě zájmu nám napište pár informací o sobě a rádi se vám ozveme s termínem prohlídky.



Nahoru