Makléř: Nečekal Jan
Telefon: 608 708 ...
E-mail: necekal ...
Zobrazit celý kontaktTelefon: 608 708 317
E-mail: necekal@npreality.cz
Nemovitost nabízí
NP reality, s.r.o.
Pod Višňovkou 1661/35, budova A3, 140 00 Praha 4
Zobrazit kontakt na RK608 708 317
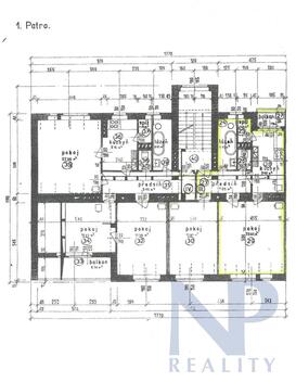
Nabízíme Vám k pronájmu velmi pěkný byt 1+1 po kompletní rekonstrukci o výměře 44 m2 ve 2. NP klidného cihlového domu. Byt se sestává z velkého pokoje, kuchyně, předsíně, koupelny se sprchovým koutem, samostatným WC, V bytě je ještě umístěna komora, v níž je umístěn kotel a bojler, ta je přístupná z kuchyně. Podlahy jsou dřevěné parkety a dlažba. Okna jsou plastová Vytápění a ohřev vody zajištuje elektrokotlem a bojler. Byt disponuje balkonem do dvora a v suterénu se nachází velký sklep. V kuchyni je umístěna nová linka IKEA, spotřebiče (myčka, varná deska, kombinovaná trouba horkovzdušná/mikrovlna), lednice. Internet PE3NY. Nájemné 22.000 Kč + služby 1.112 Kč + přehlášení el energie na nájemce cca 2.500 Kč, kauce 22.000 Kč, provize 26.620 Kč. <a href="https://www.eurobydleni.cz/byty/3_kk/prerov/obec-kladniky/prodej/"><strong>Prodej bytu 3+kk Kladníky</strong></a>
Pronájem plně vybaveného bytu 1+1 v atraktivní lokalitě Praha 2, Nusle, Oldřichova
Představujeme vám k pronájmu plně vybavený byt o dispozici 1+1, který se nachází v klidné a vyhledávané části Prahy 2, na ulici Oldřichova. Byt je…
Krásný slunný 2kk k pronájmu na Královských Vinohradech
Nabízím k pronájmu krásný a slunný byt v srdci Vinohrad, hned vedle Amerického náměstí. Byt je plně zařízený. Dům je po celkové rekonstrukci. Byt má…
Pronájem bytu 1+1 Praha 6, Veleslavín na Eurobydleni.cz