Makléř: Ing. Josef Král
Telefon: 603 975 ...
E-mail: josef.k ...
Zobrazit celý kontaktTelefon: 603 975 081
E-mail: josef.kral@gpre.cz
Nemovitost nabízí
GEPARD REALITY
Sokolovská 192/79, Praha
Zobrazit kontakt na RK739 975 533
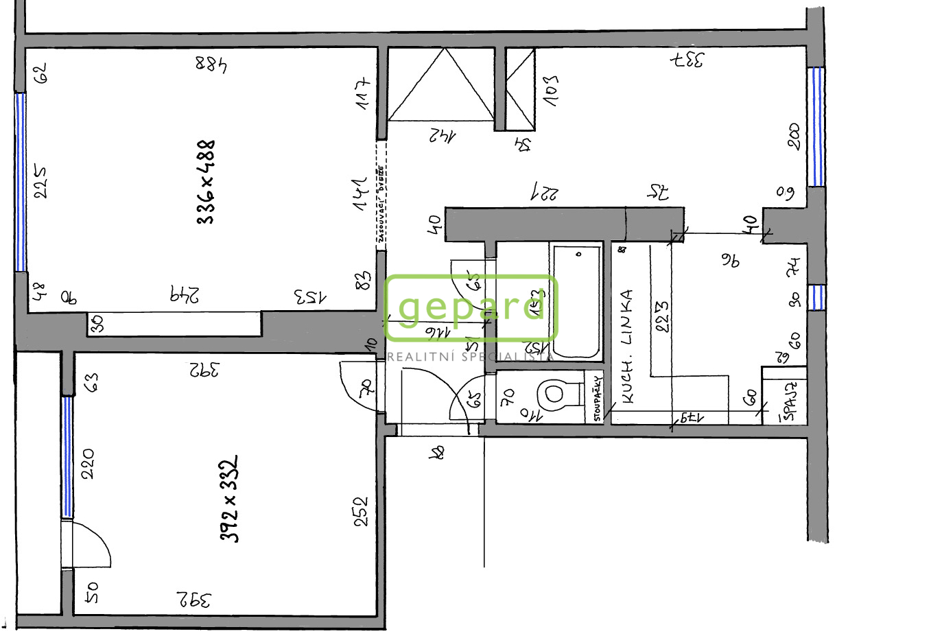
Pronajme se slunný byt o velikosti 3+kk 55 m2 v 3. podlaží třípodlažního zděného bytového domu v Praze 8 - Troja, ulice Na Šutce. Byt je v osobním vlastnictví, po nadstandardní rekonstrukci. Byt je orientován jižním směrem, s nádherným výhledem na Prahu. Dispozice: - vstupní hala 6 m2 - pokoj 1 (ložnice) 13 m2 - lodžie 3 m2 - pokoj 2 (obýv. pokoj) 17 m2 - WC 1 m2 - koupelna 3 m2 - pokoj 3 (jídelna) 8 m2 - kuchyň 4 m2 - komora/sklad v suterénu domu 7 m2 Byt je po nadstandardní rekonstrukci. V ložnici a obývacím pokoji dřevěné parkety, v hale, jídelně a kuchyni vinylové podlahy, v koupelně a WC keramická dlažba. Na stěnách štuk s výmalbou, v koupelně keramické obklady. V kuchyni nová kuchyňská linka, všechny dveře nové včetně obložek. Ve vstupní hale je vestavěná skříň. Byt se nabízí k pronájmu bez nábytku, částečně vybavený: kuchyň - elektrický sporák se sklokeramickou varnou deskou, mikrovlnná trouba předsíň - vestavěná skříň Topení a ohřev vody - centrální Elektrická energie - 220V. Voda - veřejný vodovod. Kanalizace - veřejná kanalizace. Možnost kabelové televize, internetu. Parkování - u domu. Byt má nízké provozní náklady - měsíční zúčtovatelná záloha (pro 1 osobu) 3.900,- Kč, záloha na spotřebu elektro 500,- Kč. Dům je ve výborném stavu, udržovaný, po rekonstrukci - nová plastová okna a vchodové dveře, nová střecha. Velice žádané místo s veškerou občanskou vybaveností v okolí domu, s dobrým dopravním spojením. Byt je volný ihned. Majitel upřednostní dlouhodobý nájemní vztah. Vratná kauce - dvě měsíční platby. Majitel si vyhrazuje právo vybrat nájemce dle svých vlastních kritérií.
3+kk/B, 74 m2, 4 p., ul. Pod Harfou, Praha 9 - Vysočany
Zprostředkujeme Vám pronájem bytové jednotky 3+kk s balkonem o celkové obytné ploše 74 m2, nacházející se ve čtvrtém patře novostavby s výtahem v ul.…
Nový 3+kk (74 m2) u Stromovky, Letná- Praha 7 Bubeneč, ul. U Studánky- pronájem
Nabízíme klidný nový byt 3+kk (74 m2) v blízkosti Královské obory Stromovka a Letenských sadů v oblíbené lokalitě Prahy 7- Bubeneč (Letná). Jedná se…