Aktuálně můžete v lokalitě Praha vybírat z nabídky 2 345 bytů.
Přehled nemovitostí: pronájem byty > 3+kk Zpět na přehled nabídek

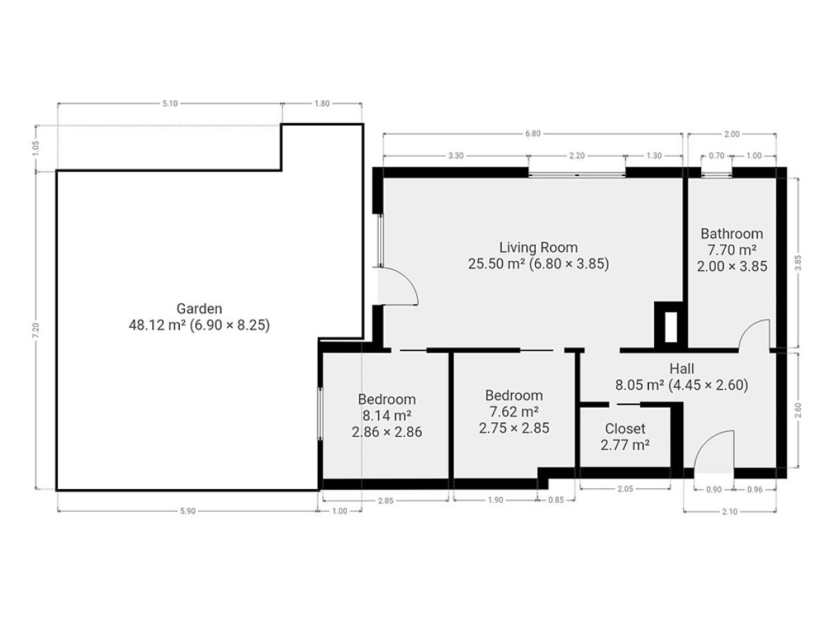
Pronájem bytu 3+kk, Vágnerova, Kbely, 27900 Kč/měs, 61 m2, Praha

61 m2

61 m2

osobní

G - Mimořádně nehospodárná

N7343

06.03.2026

Cena: 27900 CZK / objekt / měsíc
Poznámka k ceně: vratná jistota, náklady na bydlení 5 593 Kč (včetně elektřiny a internetu), poplatek za podnájem 1

Poslat dotaz k nabídce
Zásady používání osobních údajů

Prodejce

Makléř: Miloslava Kačerová

Telefon: 222 703 ...

E-mail: podpora ...

Zobrazit celý kontakt

Nemovitost nabízí

Ideální nájemce

Lazaretní 925/9, 615 00 Brno

idealninajemce.cz

Zobrazit kontakt na RK

Zobrazit všechny nabídky RK

K dlouhodobému podnájmu nabízíme byt 3+kk o velikosti 61 m2 v klidné části Prahy 19 - Kbely. Nachází se v 1. nadzemním podlaží moderního domu s výtahem a jeho největší předností je vlastní terasa se zahradou. Tento venkovní prostor umožňuje pěstovat bylinky a zeleninu, vytvořit si malý kout s posezením, prostor pro hry dětí nebo letní posezení a práci na notebooku mimo čtyři stěny - přidává bytu rozměr, který u podobně velkých dispozic často chybí. Obývací pokoj s kuchyňským koutem tvoří hlavní obytný prostor bytu a plynule navazuje na terasu. Kuchyň je plně vybavena (lednice s mrazákem, myčka, trouba, varná deska, mikrovlnná trouba, digestoř) a nabízí pohodlné místo k vaření i stolování u jídelního stolu. Obývací část je zařízena pohovkou, pracovním stolem a vestavěnou knihovnou, která poskytuje dostatek úložného prostoru, aniž by místnost působila přeplněně. Byt má dále dva samostatné pokoje. Jeden je světlý, s oknem, aktuálně vybavený patrovou postelí, dvojicí pracovních stolů, knihovnami a dostatkem úložných prostor. Druhý pokoj, přístupný přes posuvné dveře z obývacího pokoje, slouží jako klidová ložnice - je tichý a nabízí pohodlné spaní i vestavěné úložné prostory. Samostatná šatna výrazně pomáhá udržet byt vzdušný a přehledný. Předsíň je vybavena skříní, botníkem a věšákem, takže odkládání oděvů a obuvi je pohodlné. Koupelna působí prostorně - kromě vany, umyvadla a zrcadla zde najdete praktickou koupelnovou skříňku, pračku a toaletu. Kbely patří mezi okrajové části Prahy s převahou rodinných domů a menšími bytovými domy. V okolí se nachází několik parků a zelených ploch. V docházkové vzdálenosti najdete supermarket, kavárny, restaurace, poštu, polikliniku i lékárnu, stejně jako mateřskou a základní školu. Pro volný čas je k dispozici Centrální park Kbely, Lesopark Letňany nebo Krajinný park Havraňák. V blízkosti je také sportovní hala, golfové hřiště a místní knihovna. Autobusová zastávka Kbely je pár minut chůze od domu (cca 6 minut na metro C - Letňany, cca 18 minut na metro B - Černý Most). Velkou výhodou je vlaková stanice Praha-Kbely v docházkové vzdálenosti. Na pražské hlavní nádraží se dostanete přibližně za 19 minut přímým spojem, bez nutnosti kombinovat více linek - spojení do centra je rychlé a spolehlivé. Byt nemá vlastní parkovací stání, parkování je možné na ulici v okolí domu. Byt ocení ti, kdo hledají bydlení s vlastním venkovním prostorem a zároveň chtějí zůstat v rámci Prahy. Podobných bytů s terasou a zahradou je v této lokalitě velmi málo a nabídka nájemního bydlení ve Kbelích je omezená. Majitel preferuje zájemce bez domácích mazlíčků. Byt je volný k nastěhování ihned. Prohlídky jsou možné po domluvě. V případě zájmu nám napište krátkou zprávu o sobě a rádi se vám ozveme s termínem prohlídky.



Nahoru