Makléř: Vlach Radek
Telefon: 296 399 ...
E-mail: info@mm ...
Zobrazit celý kontaktTelefon: 296 399 006
E-mail: info@mmreality.cz
Nemovitost nabízí
M&M reality holding a.s.
Krakovská 1675/2, 110 00 Praha 1
Zobrazit kontakt na RK800 100 446
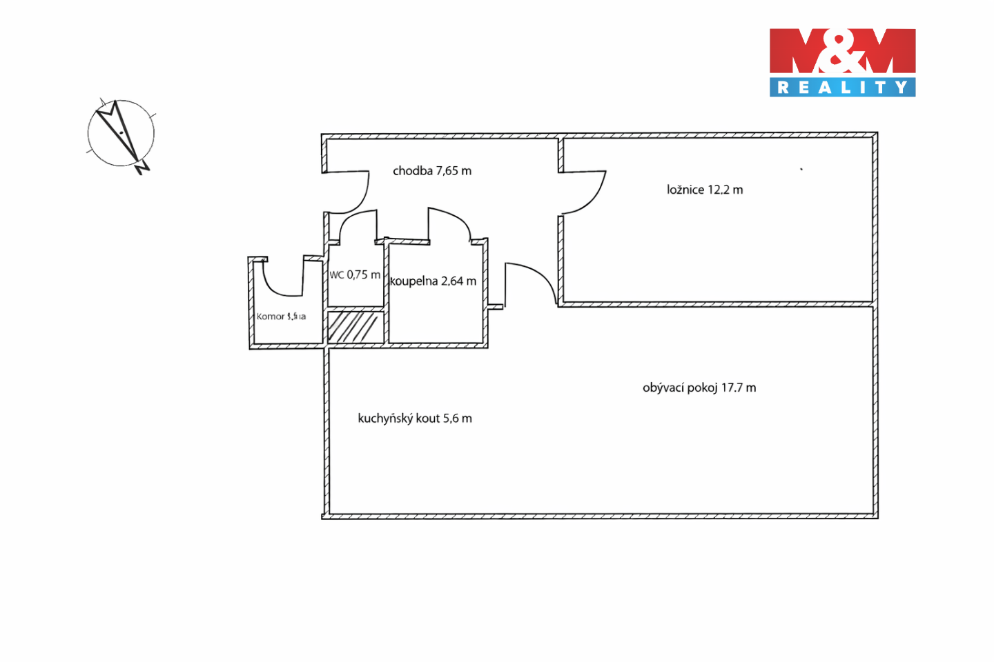
Nabízíme k prodeji prostorný, světlý byt 2+kk, 48 m2, v ulici Královická, Strašnice. Byt je před rekonstrukcí. Skládá se ze vstupní chodby, ze které se vchází do dvou neprůchozích pokojů - ložnice a do obývacího pokoje s odděleným kuchyňským koutem vybaveným starší kuchyňskou linkou. Dále se z chodby dostanete do koupelny s vanou, umyvadlem a přípravou pro pračku a na samostatné WC. Jádro je zděné. Jedná se o byt s investičním potenciálem, případně je vhodný jako startovací bydlení pro mladou rodinu. Byt se nachází v nadzemním podlaží panelového domu. K bytu náleží komora na chodbě v těsné blízkosti vstupních dveří. Ložnice i obývací pokoj jsou orientované na severozápad. Dům prošel revitalizací - zateplení, plastová okna, opravené společné prostory atd. Vzhledem k blízkosti stanice metra Skalka, vlakového nádraží a několika stanic autobusů MHD je výborná i dopravní dostupnost.
Prodej, Byt 2+kk, Praha 5
Dumrealit.cz Vám zprostředkuje prodej bytu o dispozici 2kk, výměře 66 m2, v 1. nadzemním podlaží bytového domu. Jedná se o dům z roku 2012, kde se…
Prodej, Byty 2+kk, 54 m2 - Viladomy Počernice - Praha 9
Nabízíme k prodeji byt 197-08-053 s dispozicí 2+kk (53,7 m2), lodžií (11,9 m2),přiřazeným sklepem a parkovacím stáním v novém projektu Viladomy…