Makléř: Miloslava Kačerová
Telefon: 222 703 ...
E-mail: podpora ...
Zobrazit celý kontaktTelefon: 222 703 030
E-mail: podpora@idealninajemce.cz
Nemovitost nabízí
Ideální nájemce
Lazaretní 925/9, 615 00 Brno
Zobrazit kontakt na RK222 703 030
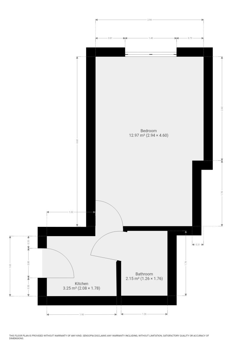
K dlouhodobému podnájmu Vám nabízíme zařízený byt o dispozici 1kk v samotném srdci pražských Vinohrad jednosměrné ulice Sobotecká. Byt se nachází ve 3.patře udržovaného, cihlového domu s výtahem. Skládá se z kompletně zařízené kuchyně, koupelny se sprchovým koutem a obývacího pokoje / ložnice. Byt se nabízí zařízený tak, jak vidíte na fotografií. Momentálně je po kompletní výmalbě. Nová matrace. Byt se nachází v lokalitě s výbornou dopravní infrastrukturou a kompletní občanskou vybaveností. Necelých 200m od domu je tramvajová zastávka Perunova . Obchod Billa je doslova před domem. Také je zde nespočet barů, restaurací a kaváren. Byt je volný k nastěhování IHNED. Zálohové platby už obsahují zálohy na elektřinu a pojištění domácnosti. Uvedena energetická kategorie G, jelikož nemáme k dispozici PENB. Byt pronajímá Ideální nájemce - služba, se kterou budete bydlet bezstarostně a za férových podmínek. Když se něco přihodí, k dispozici jsou správci, kteří s vámi vše vyřeší. Pomůžeme s veškerou administrativou, s nastavením plateb a zajistíme vám speciální pojištění. Pojďte bydlet s námi!
Pronájem 1+kk, 30 m2, Praha 5 - Smíchov
GLJ Partners nabízí k dlouhodobému pronájmu plně zařízené studio 1+kk o ploše 30 m2 ve 3. patře rezidence s výtahem v žádané lokalitě Praha 5 -…
Pronájem pokoje 1 lůžko, 15 m2 - Praha - Velká Chuchle
Naše společnost nabízí k pronájmu samostatný pokoj situovaný do sdílených prostor, nacházející se v cihlovém domě obklopeném krásnou přírodou a s…