Makléř: Šimon Havlík
Telefon: 604 227 ...
E-mail: shavlik ...
Zobrazit celý kontaktTelefon: 604 227 668, 604 227 668
E-mail: shavlik@hvbreal.cz
Nemovitost nabízí
HVB Real Estate s.r.o.
Korunní 1310/56, 120 00 Praha - Vinohrady
Zobrazit kontakt na RK602 200 907
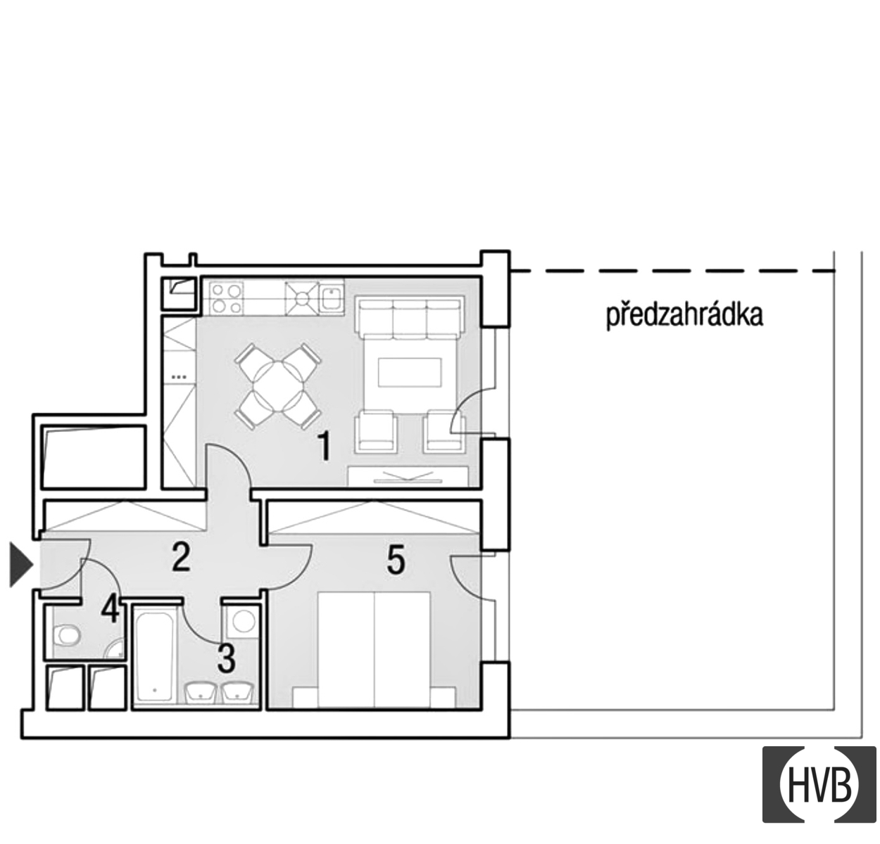
Nabízíme k prodeji byt 2+kk, 51m2 se soukromou zahrádkou 46m2. Byt je momentálně v osobním vlastnictví. Součástí je také sklepní kóje o ploše 2m2 a vyhrazené garážové stání. Dispozice bytu je předsíň, koupelna s vanou, oddělená toaleta, obývací pokoj s kuchyňským koutem a vstup na zahrádku. Jednotka se nachází v prvním nadzemním podlaží. V blízkosti veškerá občanská a kulturní vybavenost, perfektní dopravní dostupnost. V případě zájmu či dotazů neváhejte kontaktovat makléře i přes víkend.
Prodej, Byt 2+kk, Praha 15
Vítejte v luxusně zrekonstruovaném bytě 1+kk s možností předělání na 2+kk o celkové ploše 59,5 m2 (49 m2 byt + 9,5 m2 balkon + 1 m2 sklep). * Co…
Prodej byty 2+kk, o velikosti 43,9 m2 - Praha - Satalice
Nové moderní bydlení na pomezí města a přírody Objevte svůj nový domov v Satalicích, kde se pohodlí městského života snoubí s klidnou atmosférou…