Aktuálně můžete v lokalitě Praha vybírat z nabídky 2 345 bytů.
Přehled nemovitostí: pronájem byty > 1+kk Zpět na přehled nabídek

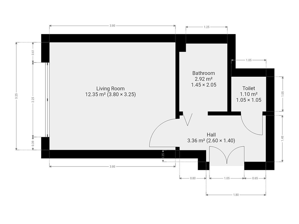
Pronájem bytu 1+kk, Soběslavská, Vinohrady, 14000 Kč/měs, 20 m2, Praha

Aktivní

20 m2

20 m2

osobní

G - Mimořádně nehospodárná

N6458

02.03.2026

Cena: 14000 CZK / objekt / měsíc
Poznámka k ceně: vratná jistota, náklady na bydlení 4 512 Kč, poplatek za podnájem 1

Poslat dotaz k nabídce
Zásady používání osobních údajů

Prodejce

Makléř: Miloslava Kačerová

Telefon: 222 703 ...

E-mail: podpora ...

Zobrazit celý kontakt

Nemovitost nabízí

Ideální nájemce

Lazaretní 925/9, 615 00 Brno

idealninajemce.cz

Zobrazit kontakt na RK

Zobrazit všechny nabídky RK

Nabízíme k podnájmu vybavený byt 1+kk o velikosti 20 m2, který se nachází ve 3. patře cihlového domu s výtahem. Byt je ideální pro jednotlivce nebo pár hledající klidné bydlení v atraktivní lokalitě s výbornou dopravní dostupností. Při vstupu do bytu je k dispozici menší šatní skříň a botník. Hlavní obytná místnost je propojena s kuchyňským koutem, kde se nachází trouba, varná deska, varná konvice a lednice. V pokoji jsou praktické úložné skříňky a rozkládací sedací souprava vhodná ke každodennímu spaní. Byt se nachází v žádané lokalitě pražských Vinohrad. Stanice metra A - Želivského je vzdálena 4 minuty chůze, tramvajová zastávka Olšanské hřbitovy je taktéž do 4 minut. Obchodní centrum Flora je vzdálené cca 15 minut chůze. V okolí najdete množství kaváren, restaurací a obchodů. Byt je volný od 01.06.2026. Uvedena energetická kategorie G, jelikož nemáme k dispozici PENB. Byt pronajímá Ideální nájemce - služba, se kterou budete bydlet bezstarostně a za férových podmínek. Když se něco přihodí, k dispozici jsou správci, kteří s vámi vše vyřeší. Pomůžeme s veškerou administrativou, s nastavením plateb a zajistíme vám speciální pojištění. Pojďte bydlet s námi!



Nahoru