Makléř: Darina Smetanová - Pracovní doba: PONDĚLÍ - PÁTEK OD 9:00-17
Telefon: 722 941 ...
E-mail: smetano ...
Zobrazit celý kontaktTelefon: 722 941 392
E-mail: smetanova@reality11.cz
Nemovitost nabízí
REAL ESTATE CZECH REPUBLIC a.s.
Zobrazit kontakt na RK
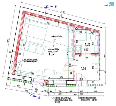
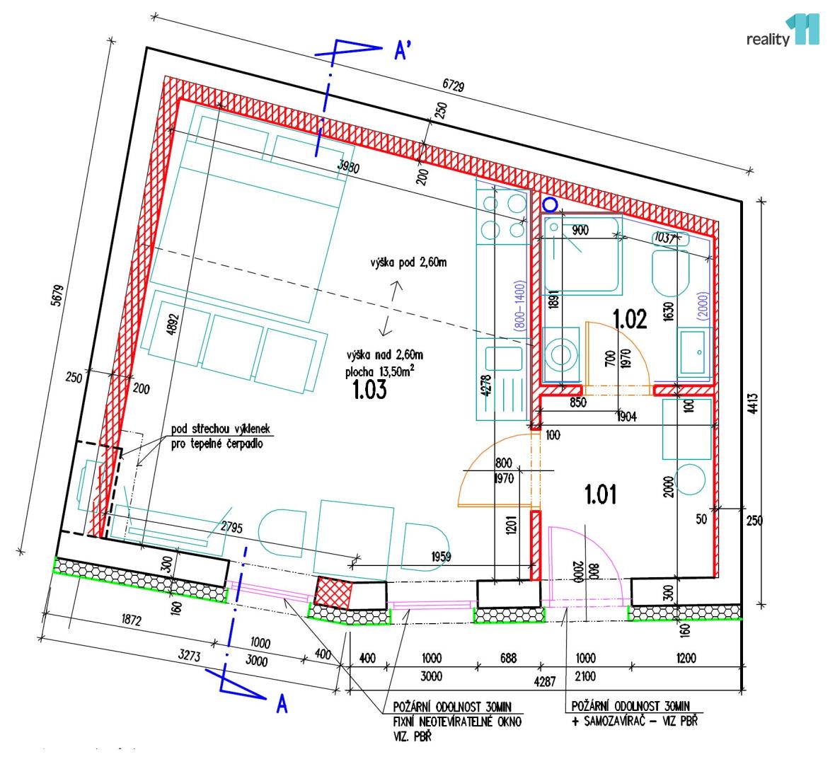
Exkluzivně nabízíme k prodeji dvě atypické jednotky o celkové ploše 34 m2, které se nacházejí ve vnitrobloku domu. Nemovitost se nachází v klidném prostředí nedaleko administrativního centra Brumlovka. Hlavní jednotka 1kk má plochu 28 m2 a je kolaudována jako ubytovací jednotka. Druhý prostor o velikosti 6 m2 je veden jako nebytový prostor a je vhodný například jako sklad, nebo technická místnost. Velkou výhodou je prostorná terasa, která je určena k výhradnímu užívání za nájemné 3 000 Kč ročně. Na terase je připraven přívod vody i elektřiny, což umožňuje například instalaci pergoly, venkovního posezení, krbu či vířivky. Prostory prošly kompletní rekonstrukcí v roce 2024. Technické informace: užitná plocha celkem: 34 m2 hlavní jednotka: 28 m2 nebytový prostor (sklad): 6 m2 podlahové vytápění klimatizace centrální rekuperace zateplení objektu (20 cm polystyren) francouzská okna s výhledem na terasu vysoký strop s možností vestavby patra na spaní. Součástí je kuchyňská linka s elektrickým sporákem, koupelna se sprchovým koutem a WC. Ohřev vody zajišťuje elektrický bojler. Měsíční náklady: 1 800 Kč + elektřina dle spotřeby cca 2 000 Kč Jedná se o zajímavou investiční příležitost vhodnou například k pronájmu. V případě zájmu je možné zajistit zdarma pronájem jednotky. Výborná dopravní dostupnost - autobusová zastávka Hadovitá u domu, stanice metra C - Kačerov jednu zastávku autobusem. Parkování je možné na placeném parkovišti nebo prostřednictvím rezidentní parkovací karty přibližně 100 metrů od domu. Prodávající preferuje rychlé jednání a kupujícího s připravenými vlastními finančními prostředky. Ev. číslo: 27760. Energetický štítek: C
Jednotka 1+1, UP 42,8 m2, Praha 4 Nusle
Nabízíme k prodeji jednotku - ateliér v osobním vlastnictví o rozloze 42,8 m2, který se nachází ve sníženém přízemí pětipatrového činžovního domu v…
Prodej bytu 1+1, 39m2, Praha 3 Žižkov, ul. Husitská
Nabízíme k prodeji světlý, kompletně zrekonstruovaný byt o dispozici 1+1, který se nachází ve 2. nadzemním podlaží činžovního domu v oblíbené…