Makléř: Miloslava Kačerová
Telefon: 222 703 ...
E-mail: podpora ...
Zobrazit celý kontaktTelefon: 222 703 030
E-mail: podpora@idealninajemce.cz
Nemovitost nabízí
Ideální nájemce
Lazaretní 925/9, 615 00 Brno
Zobrazit kontakt na RK222 703 030
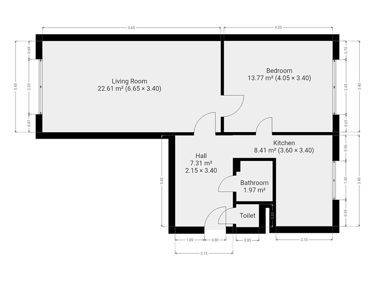
K dlouhodobému podnájmu nabízíme světlý byt o dispozici 2+1 v oblíbené rezidenční lokalitě Praha 6 - Břevnov, v ulici Na Petřinách. Byt o celkové ploše 58 m2 se nachází v 1. patře udržovaného panelového domu bez výtahu. K bytu náleží sklepní kóje. Byt je částečně vybavený a nabízí dostatek prostoru pro zařízení podle vlastních představ. Kuchyně je vybavena lednicí s mrazákem, myčkou, troubou, varnou deskou, mikrovlnnou troubou, digestoří a pračkou. Obývací pokoj je nezařízený, v ložnici je k dispozici šatní skříň. V koupelně se nachází vana, umyvadlo se zrcadlem a koupelnová skříňka. Toaleta je umístěna samostatně. V předsíni je botník a vestavěná skříň s dostatkem úložného prostoru. Velkou výhodou bytu je jeho poloha v klidné části Prahy 6 s množstvím zeleně. Lokalita Petřiny patří dlouhodobě mezi velmi vyhledávané díky příjemnému rezidenčnímu charakteru a výborné občanské vybavenosti. V docházkové vzdálenosti se nachází restaurace, kavárny, supermarkety, drogerie, lékárna, pošta i městská knihovna. Blízké okolí nabízí také řadu možností pro procházky a sport - například Břevnovskou klášterní zahradu, Zámecký park Veleslavín, Oboru Hvězda nebo park Ladronka. Dopravní dostupnost je velmi dobrá - v docházkové vzdálenosti se nachází stanice metra A - Petřiny i tramvajové zastávky, které zajišťují rychlé spojení do centra města. Byt je vhodný zejména pro jednotlivce nebo pár, kteří hledají klidné bydlení v příjemné lokalitě s dostatkem zeleně a výbornou dostupností do centra. Majitel preferuje zájemce bez domácích mazlíčků. Byt je volný k nastěhování ihned. Prohlídky jsou možné po domluvě. V případě zájmu nám napište krátkou zprávu o sobě a rádi se vám ozveme s termínem prohlídky. Energetická náročnost budovy: třída D (méně úsporná).
Světlý byt 2+1 s balkonem, garážovým stáním a sklepní kójí
Nabízíme k pronájmu světlý a prostorný byt 2+1 s balkonem a garážovým stáním, který se nachází ve 3. patře cihlové novostavby s výtahem, jen pár…
Pronájem, Byt 2+1, Praha 1
včetně vybavení a balkonu, výtah. Ve výhradním zastoupení vám rádi zprostředkujeme pronájem bytové jednotky v osobním vlastnictví o dispozici 2+1 a…