Aktuálně můžete v lokalitě Praha vybírat z nabídky 2 345 bytů.
Přehled nemovitostí: pronájem byty > 3+1 Zpět na přehled nabídek

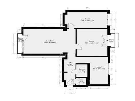
Pronájem bytu 3+1, Severní I, Záběhlice, 26000 Kč/měs, 66 m2, Praha

66 m2

66 m2

osobní

G - Mimořádně nehospodárná

N4665

07.03.2026

Cena: 26000 CZK / objekt / měsíc
Poznámka k ceně: vratná jistota, náklady na bydlení 6088 kč, poplatek za podnájem 1

Poslat dotaz k nabídce
Zásady používání osobních údajů

Prodejce

Makléř: Miloslava Kačerová

Telefon: 222 703 ...

E-mail: podpora ...

Zobrazit celý kontakt

Nemovitost nabízí

Ideální nájemce

Lazaretní 925/9, 615 00 Brno

idealninajemce.cz

Zobrazit kontakt na RK

Zobrazit všechny nabídky RK

K dlouhodobému podnájmu nabízíme krásný prosluněný byt po kompletní rekonstrukci o dispozici 3+1 v klidné a oblíbené lokalitě Záběhlice. Byt o celkové výměře 66 m2 se nachází ve 3. podlaží panelového domu. K bytu patří i balkon a sklep. Byt se nabízí nevybavený. Kuchyně disponuje vestavnou lednicí, myčkou, elektrickou troubou, varnou deskou, mikrovlnnou troubou a digestoří. Obývací část je průchozí z obou pokojů a najdeme zde i balkon. Dále zde najdeme dvě ložnice, jedna z ložnic má taky balkon. V koupelně je sprchový kout. Toaleta je umístěna samostatně. V okolí domu najdeme restaurace, supermarkety, základní a mateřskou školu, kavárny atd. Čtyři minuty chůze od domu je vzdálená autobusová s výborným spojením jak na metro tak do centra. Majitel preferuje zájemce bez domácích mazlíčků. Byt je volný k nastěhování od 01.05.2026



Nahoru