Aktuálně můžete v lokalitě Praha vybírat z nabídky 2 345 bytů.
Přehled nemovitostí: pronájem byty > 3+kk Zpět na přehled nabídek

Pronájem zrekonstruovaného bytu 3+kk (2+1) o rozloze 52 m2 s rozlehlou terasou v Praze 4 - Michli, Praha

neuvedeno

neuvedeno

osobní

G - Mimořádně nehospodárná

285-NP00361

12.03.2026

Cena: 23900 CZK / objekt / měsíc

Poslat dotaz k nabídce
Zásady používání osobních údajů

Prodejce

Makléř: Ing. Daniela Šilhová

Telefon: 774 101 ...

E-mail: daniela ...

Zobrazit celý kontakt

Nemovitost nabízí

Denisa Dřevěná

Větrná 453, Králův Dvůr

www.denisadrevena.cz

Zobrazit kontakt na RK

Zobrazit všechny nabídky RK

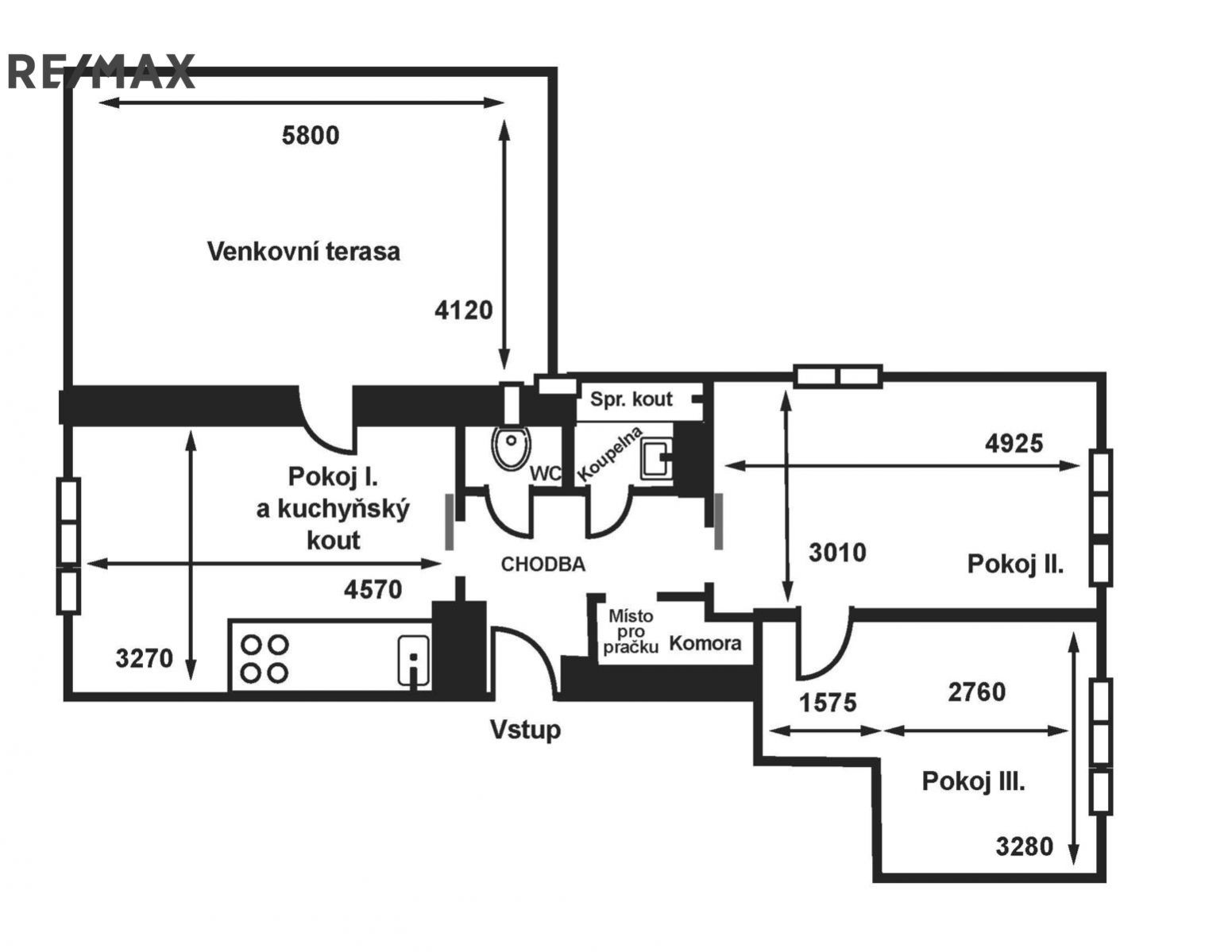
V exkluzivním zastoupení nabízíme k pronájmu zrekonstruovaný byt s dispozicí 3+kk (2+1) o výměře 52 m2 s rozlehlou terasou v Praze 4 Michli v klidné lokalitě a přitom s centrem na dosah. Bytová jednotka je umístěna v 1. nadzemním podlaží. Byt má předsíň (5,35 m2), ze které se vchází do kuchyně (kvalitní kuchyňská linka se zabudovanými spotřebiči) s obývacím prostorem (14,71 m2); z této místnosti je přístup na otevřenou terasu (21,93 m2). Z předsíně se také vchází do koupelny se sprchovým koutem (2,11 m2), na toaletu (1,25 m2), do technické místnosti s přípojkami pro pračku i sušičku (1,21 m2) a do pokoje s okny orientovanými do zahrady (15,12 m2); na tento prostor navazuje ložnice (11,91 m2). Byt se nabízí nevybavený, pouze v ložnici je velká šatní skříň a po domluvě lze ponechat jednolůžkovou postel s úložným prostorem. Vytápění bytu a ohřev vody zabezpečuje společný plynový kotel. Byt je v menším činžovním domě rodinného charakteru v poklidné ulici, v okolí menší činžovní či rodinné domy. Dům je stranou od frekventovaných komunikací a přitom v docházkové vzdálenosti na autobusovou stanici MHD se snadnou a rychlou dostupností stanice metra Budějovická či Kačerov (trasa C). Lokalita má vynikající dopravní obslužnost, v blízkosti je administrativní a obchodní centrum Brumlovka. V dosahu je rovněž veškerá občanská infrastruktura (školy, školky, poliklinika, sportovní zařízení). Bezproblémové parkování pro rezidenty této městské části na modré zóně před domem (lze zprocesovat s MČ Praha 4 na základě nájemní smlouvy). S ohledem na zdařilou rekonstrukci a vynikající lokalitu se jedná o velmi atraktivní nabídku. Měsíční nájemné činí 23.900,- Kč. Měsíční poplatky spojené s užíváním bytu jsou řešeny paušálními platbami vytápění plynovým kotlem a ohřev vody 2.000,- Kč/byt, voda 500,- Kč/osoba. Elektřina se převádí přímo na nájemce. Vratná kauce je ve výši jednoho nájmu + měsíční paušální poplatky. Provize RK je ve výši jednoho nájmu + DPH. Byt je ihned volný k nastěhování. Hledáte-li klidné bydlení v prestižní lokalitě se snadnou dostupností centra Prahy, pro domluvení prohlídky nemovitosti a více informací kontaktujte makléře, v RE/MAX Prestige jsme vždy připraveni vám vyjít vstříc! Pronajímající si vyhrazuje právo vybrat nájemce na základě jím zvolených kritérií. <a href="https://www.eurobydleni.cz/byty/2_kk/praha-4/obec-krc/pronajem/"><strong>Pronájem bytu 2+kk Praha 4, Krč</strong></a>




Pronájem bytu 3+kk Praha 4, Michle na Eurobydleni.cz


Nahoru