Makléř: Ing. Jaroslav Šesták
Telefon: 605 172 ...
E-mail: sestak@ ...
Zobrazit celý kontaktTelefon: 605 172 214
E-mail: sestak@soccer-reality.cz
Nemovitost nabízí
Soccer Reality s.r.o.
ul. Bratří Dohalských 144/8, 190 00 Praha 9 - Vysočany
Zobrazit kontakt na RK777 276 667
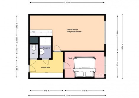
Soccer Reality vám zprostředkuje pronájem bytu o dispozici 2+kk s výměrou 47 m2 v ulici Za Sídlištěm, Praha 4 - Komořany. Byt s nádherným výhledem se nachází v 10. nadzemním podlaží z celkových 12 podlaží udržovaného panelového domu. Dům prošel rekonstrukcí, a to jak vnější, tak vnitřní. Byla provedena nová fasáda, instalována nová bílá dřevěná okna včetně hliníkových vnitřních žaluzií a modernizovány výtahy. V bytě je základní kuchyňská linka, přičemž je zde možnost upravit si kuchyň podle vlastních představ. Vestavěné skříně s dostatkem úložných prostor se nachází v chodbě. V koupelně je sprchový masážní box s rádiem. K bytu náleží sklepní kóje o výměře 3 m2. Před budovou je parkoviště s možností parkování auta. Velkou výhodou lokality je blízkost přírody - například Modřanská rokle nebo Komořanský les jsou vzdálené jen pár minut chůze. V okolí je veškerá občanská vybavenost - školy, školky, obchody, restaurace i pošta. Skvělá dopravní dostupnost MHD - zastávka autobusu pouhé 2 minuty pěšky, rychlé spojení na metro C - Kačerov. Domácí mazlíček je zde vítán. Byt je k dispozici od 1. 5. 2026.
2+kk byt (45m2), v Holečkově ulici, Praha 5
Pronájem plně zařízeného servisovaného 2+kk apartmánu o velikosti 45 m2 v budově s výtahem. Apartmány jsou rozděleny na samostatnou ložnici s…
Pronájem bytu 2kk(56m2) - Praha -Vinohrady - Náměstí Jiřího z Poděbrad
Zcela nový, luxusní, prostorný a klimatizovaný byt 2kk (56 m2) s parkovacím místem v 5. nadzemním podlaží kompletně rekonstruovaného činžovního domu…