Makléř: MgA. Jiří Příhoda
Telefon: 775 727 ...
E-mail: jiripri ...
Zobrazit celý kontaktTelefon: 775 727 987
E-mail: jiriprihoda@relitas.cz
Nemovitost nabízí
RELITAS - realitní asociace s.r.o.
Klapálkova 2245/15, Praha
Zobrazit kontakt na RK734 693 031
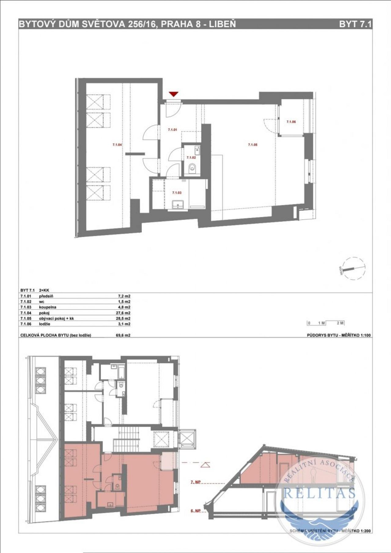
K pronájmu nabízíme zcela nový, dosud neužívaný byt 2+kk o ploše 69,6 m s balkonem 3,1 m, situovaný v kompletně zrekonstruovaném bytovém domě ve vlastnictví majitele na adrese Světova 16. Byt vznikl v rámci náročné rekonstrukce domu, která zahrnovala výstavbu nového výtahu, nové technické rozvody i vznik nových bytových jednotek v kvalitě současné novostavby. Interiér a standard: Byt je navržen s důrazem na komfort, světlo a nadčasovou estetiku. Díky jižní orientaci nabízí přirozeně světlý interiér po celý den. Dispozice zahrnuje: prostorný obývací pokoj s kuchyňským koutem samostatnou ložnici elegantní koupelnu se sprchovým koutem samostatné WC vstupní chodbu balkon Použité materiály a technické řešení odpovídají prémiovému standardu: podlahové vytápění v celém bytě klimatizace kvalitní podlahy v dekoru dřeva designová koupelna a sanita moderní kuchyňská linka se spotřebiči interiérové dveře se skrytými panty bezpečnostní vstupní dveře Celek působí čistě, elegantně a funkčně bez kompromisů. Dům a lokalita: Reprezentativní bytový dům po kompletní rekonstrukci kombinuje moderní komfort s městským charakterem Libně. Lokalita nabízí: rychlé spojení do centra Prahy metro B Palmovka, tramvajové linky kompletní občanskou vybavenost blízkost zeleně, parků a cyklostezek Pro koho je byt určen: Byt je ideální pro náročného jednotlivce nebo pár, kteří hledají: nový byt bez kompromisů vysoký standard bydlení klid, světlo a kvalitu dlouhodobý pronájem <a href="https://www.eurobydleni.cz/domy/rodinny-dum/brno-venkov/obec-pozorice/prodej/"><strong>Prodej rodinného domu Pozořice</strong></a>
Mezonetový byt 2+kk, 55 m2 s terasou, Holečkova ulice, Praha 5
Pronájem světlého klimatizovaného mezonetového 2+kk bytu (55m2) s terasou nacházejícím se v 5.patře secesního domu bez výtahu. Skvělá dopravní…
Pronájem bytu 2+kk, Jetelová, Záběhlice, 17000 Kč/měs, 40 m2
K dlouhodobému podnájmu nabízíme příjemný byt o dispozici 2+Kk v oblíbené lokalitě Praha - Záběhlice. Byt o podlahové ploše 40 m2 se nachází ve 3.…
Pronájem bytu 2+kk Praha 8, Libeň na Eurobydleni.cz