Makléř: Miloslava Kačerová
Telefon: 222 703 ...
E-mail: podpora ...
Zobrazit celý kontaktTelefon: 222 703 030
E-mail: podpora@idealninajemce.cz
Nemovitost nabízí
Ideální nájemce
Lazaretní 925/9, 615 00 Brno
Zobrazit kontakt na RK222 703 030
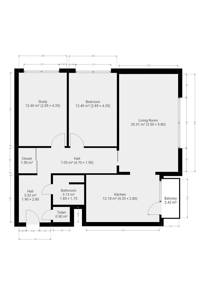
Nabízíme k podnájmu světlý, velmi příjemný byt o dispozici 3+1, který se nachází ve 2.patře. Byt je situován v klidné a vyhledávané lokalitě Nových Butovic, konkrétně v ulici Volutová. Byt je částečně vybavený a připravený k nastěhování. Kuchyň je zařízena spotřebiči - k dispozici je lednice, myčka nádobí, elektrická trouba, elektrická varná deska, digestoř a mikrovlnka, všechny spotřebiče jsou ve vysokém standartu. Kuchyň je velmi prostorná a tak nabízí dostatek prostoru pro vaření i skladování potravin. Obývací pokoj je částečně vybaven a je klimatizován z tohoto pokoje lze vstoupit na balkon. Druhý pokoj, který lze využít jako ložnici či pracovnu, je rovněž částečně zařízen - najdete zde šatní skříň a police pro uskladnění věcí. V ložnici je manželská postel a prostorná šatní skříň. Koupelna je kompletně vybavena - prostorných sprchovým koutem a koupelnovou skříňkou, umístěnou nad umyvadlem, součástí je i pračka. Toaleta se nachází odděleně. Na chodbě bytu se nachází další praktický úložný prostor, který ocení každý nájemce. Byt je velmi světlý a je klimatizován. Je umístěn v klidné lokalitě, která je ideální pro ty, kteří si chtějí po práci odpočinout od ruchu velkoměsta. 3 minuty chůzí je metro B Hůrka, v okolí bytu je veškerá vybavenost, včetně možnosti nákupu potravin a dalšího zboží. 5 minut chůzi se nachází poliklinika. Byt je k dispozici ihned. Energetická třída: G (průkaz nedodán).
Reprezentativní byt 3+1 k pronájmu v historickém srdci Prahy - Malá Strana, Kampa
Nabízíme luxusní bydlení v srdci Malé Strany s ikonickými výhledy. Výjimečné bydlení v historickém srdci Prahy. Tento prostorný a stylově zařízený…
Pronájem bytu 3+1, Radhošťská, Vinohrady, 30000 Kč/měs, 96 m2
K dlouhodobému podnájmu nabízíme prostorný byt o dispozici 3+1 v oblíbené lokalitě Praha - Vinohrady. Byt o podlahové ploše 96 m2 se nachází ve 3.…