Aktuálně můžete v lokalitě Praha vybírat z nabídky 2 349 bytů.
Přehled nemovitostí: pronájem byty > 4+1 Zpět na přehled nabídek

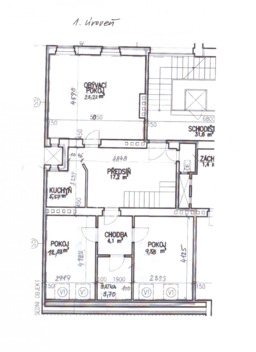
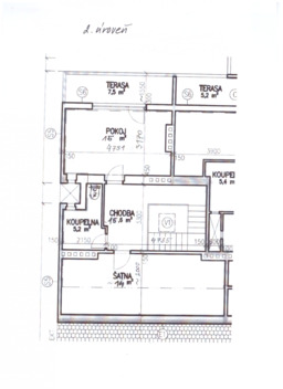
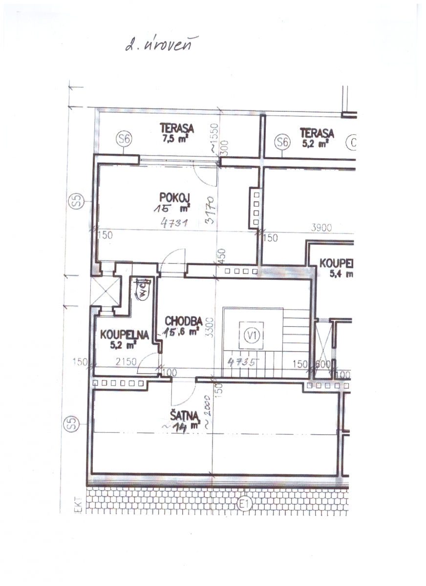
Pronájem 4+1 126m2, terasa 8m2 Praha 6, Bubeneč , Dr.Zikmunda Wintra

neuvedeno

neuvedeno

osobní

G - Mimořádně nehospodárná

19199

18.03.2026

Cena: 40250 CZK / objekt / měsíc
Poznámka k ceně: plus poplatky 8000 vč. elektřiny 1

Poslat dotaz k nabídce
Zásady používání osobních údajů

Prodejce

Makléř: Svoboda Zdenek

Telefon: 739 914 ...

E-mail: info@fr ...

Zobrazit celý kontakt

Nemovitost nabízí

FREEDOM REALITY s.r.o.

Rybná 716/24, Staré Město, Praha

freedomreality.cz

Zobrazit kontakt na RK

Zobrazit všechny nabídky RK

Pronájem bytu o velikosti 4+1 126m2 s terasou 8m2, Praha 6, Bubeneč, Dr.Zikmunda Wintra. Dvoupatrový byt se skládá ze čtyř neprůchozích místnosti, kuchyně, prostorné patrové předsíně, šatny, prostorné komory, koupelny s vanou a toaletou, samostatné toalety. Kuchyňská linka je vybavena standartními spotřebiči. Byt prošel kompletní zdařilou rekonstrukcí. Metro a tramvajová zastávka v blízkosti domu. V okolí se nachází zeleň a sportovní vyžití. Předností tohoto bytu je lokalita s výbornou dostupností do centra a zároveň s veškerou občanskou vybaveností. Byt se nabízí k dlouhodobému bydlení. K nastěhování od ihned. Doporučuji. <a href="https://www.eurobydleni.cz/byty/2_1/opava/obec-opava/pronajem/"><strong>Pronájem bytu 2+1 Opava</strong></a>




Pronájem bytu 4+1 Praha 6, Bubeneč na Eurobydleni.cz


Nahoru