Aktuálně můžete v lokalitě Praha vybírat z nabídky 2 349 bytů.
Přehled nemovitostí: pronájem byty > 2+kk Zpět na přehled nabídek

Pronájem 2+kk/T, 59 m2 + terasa a zahrada 95 m2, garáž, Žampiónová, P 22 - Pitkovice , Praha

43 m2

neuvedeno

osobní

D - Méně úsporná

46

19.03.2026

Cena: 25000 CZK / objekt / měsíc
Poznámka k ceně: + zálohy na služby 6.270 Kč (vč. vytápění a teplé vody) + přehlášení el. energie na nájemce 1.000 1

Poslat dotaz k nabídce
Zásady používání osobních údajů

Prodejce

Makléř: Nečekal Jan

Telefon: 608 708 ...

E-mail: necekal ...

Zobrazit celý kontakt

Nemovitost nabízí

NP reality, s.r.o.

Pod Višňovkou 1661/35, budova A3, 140 00 Praha 4

www.npreality.cz

Zobrazit kontakt na RK

Zobrazit všechny nabídky RK

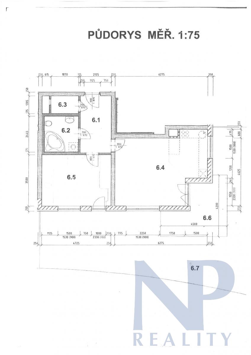
Nabízíme Vám k pronájmu pěkný byt 2+kk 59 m2 s jihozápadní terasou a předzahrádkou o výměře 95 m2. Byt se nachází v udržované novostavbě na kraji Pitkovického parku v uzavřeném oploceném areálu několika samostatných residencí s vlastním dětským hřištěm . Terasa s předzahrádkou ve tvaru L obepíná byt a je oplocena a porostlá listnatým živým plotem. Předzahrádka poskytuje bytu nadstandartní uživatelské možnosti a využití volného času. Na terase je nainstalovaná pergola a pod ní je stůl s židlemi. Byt je tvořen předsíní 7,9 m2, obývacím pokojem s kuchyňským koutem 27 m2, ložnicí 16,3 m2, koupelnou s vanou a wc 5,4 m2 a komorou 2,2 m2. Byt je vybavený kuchyňskou linkou s horkovzdušnou troubou a varnou deskou, myčkou, digestoří a ledničkou s mrazákem, dále dvěma šatními skříněmi na míru v ložnici a předsíni. Na podlahách je položená plovoucí podlaha a dlažba. K bytu náleží garáž umístěná v suterénu domu. Před domem je možné parkování bez problému. Vytápění a ohřev vody je ústřední dálkové. Byt je k nastěhování ihned. Nájemné 25.000 Kč + záloha služby (vytápění, teplá a studená voda, odvoz odpadů) 6.270 Kč + převod odběru el. energie 1.000 Kč, kauce 25.000 Kč, provize 25.000 Kč + DPH. MHD 50 m od domu.




Pronájem bytu 2+kk Praha 10, Pitkovice na Eurobydleni.cz


Nahoru