Makléř: Jan Bahorec
Telefon: 775 365 ...
E-mail: jan.bah ...
Zobrazit celý kontaktTelefon: 775 365 366
E-mail: jan.bahorec@rkevropa.cz
Nemovitost nabízí
EVROPA realitní kancelář
Václavské nám. 806/62, 110 00 Praha 1
Zobrazit kontakt na RK
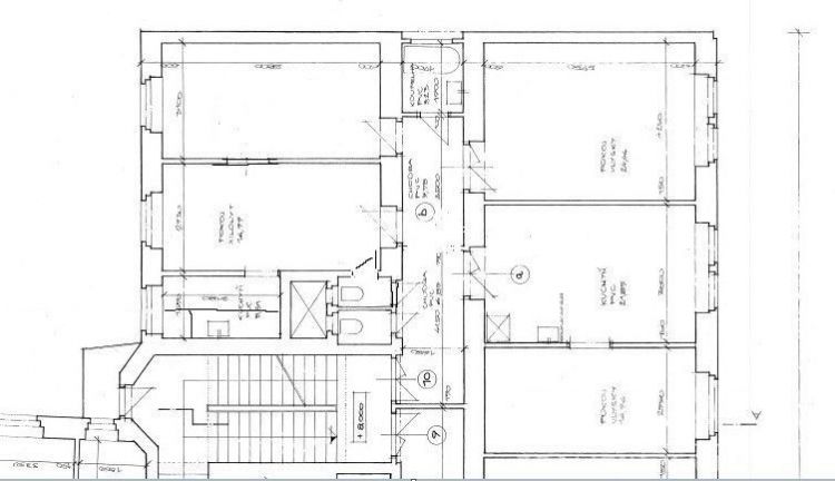
Nabízíme k pronájmu prostorný a světlý byt 5+kk, o celkové podlahové ploše 120m2, který prošel před pár lety rekonstrukcí. Byt se nachází ve 3 NP, s výtahem do mezipatra domu. Skládá se z velké vstupní předsíně (chodby), která je středem bytu, a z které se viz. přiložený půdorys vstupuje do obytných místností. Dispozice celkem pěti prostorných pokojů, z toho tři jsou samostatné a neprůchozí a dva jsou průchozí (obývací pokoj) a pokoj užívaný historicky jako velká jídelna, který je navázaný a přímo průchozí do menšího prostoru kuchyně. Kuchyň je vybavená menší kuchyňskou linkou (kombinovaný sporák, plynová varná deska, místo pro případnou myčku nádobí. Koupelna s vanou, místem pro pračku a vlastním plynovým etážovým kotlem, dále samostatné WC a komora. Podlahy jsou parkety, dřevo a pvc. Lokalita pražských Vinohrad nabízí perfektní bydlení s s kompletní občanskou vybaveností ( v blízkosti tramvajová zastávka a pěší chůzí dostupné metro Náměstí míru), nedaleko vstupu do Riegrových sadů. Prohlídky možné po domluvě s makléřem. Byt je volný k nastěhování ihned. Z důvodu absence PENB uvádíme energetickou třídu G, údaj není relevantní. <a href="https://www.eurobydleni.cz/pozemky/zemedelska-puda/hodonin/obec-skoronice/prodej/"><strong>Prodej zemědělské půdy Skoronice</strong></a>
P5 Smíchov, Holečkova ul., nový luxusní mezonetový byt 5 + k.k., 212 m2 + terasy 111 m2, klimatizace
Praha 5 - Smíchov, Holečkova ul. - nachází se v rezidenční lokalitě nedaleko zahrady Kinských a Petřínských svahů, v blízkosti Francouzského lycea,…
Pronájem bytu 5+kk 186 m2 s výhledem na celou Prahu, balkon, terasa, 4x ložníce, 2x koupelna, 2x gar
Pronájem bytu 5+kk 186 m2 s výhledem na celou Prahu, balkon, terasa, 4x ložníce, 2x koupelna, 2x garáž, sklep, výtah. Jeden z mála bytů, ze kterého…
Pronájem bytu 5+kk Praha 2, Vinohrady na Eurobydleni.cz