Makléř: Sabina Ras
Telefon: 608 304 ...
E-mail: realest ...
Zobrazit celý kontaktTelefon: 608 304 994
E-mail: realestate@milanbrecka.cz
Nemovitost nabízí
Milans apartment services s.r.o.
Dubrovnická 1057/2, Praha 5
Zobrazit kontakt na RK
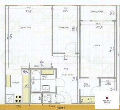
Pronájem bytové jednotky v bytovém družstvu, které dlouhodbé bydlení podporuje a neklade žádné speciální nároky. Jednotka se nachází ve zrekonstruovaném panelovém domě v ulici Malotická 1645, Praha Újezd nad Lesy. Byt je situován v posledním 7. patře s výtahem, což vám zajistí nejen dostatek světla, ale také příjemný výhled do okolní zástavby s orientací na západní stranu. Samotný byt prošel v roce 2025 rekonstrukcí bytového jádra a částečnou modernizací kuchyně. Dispozice bytu je velmi praktická všechny místnosti jsou neprůchozí, což ocení jak mladý pár, tak rodina s dítětem. V bytě se dále nachází praktická komora, která poskytuje dostatek úložného prostoru. Další úložné možnosti nabízí možnost pronájmu sklepní kóje v přízemí domu, s přístupem na čip a dalšími bezpečnostními prvky. Pronájem bytu je bez vybavení, což novému majiteli umožní vytvořit si interiér přesně podle vlastních představ. Součástí bytu zůstává kuchyňská linka se spotřebiči mimo myčky, pračky a sušičky. Dům samotný prošel rekonstrukcí a nabízí moderní a bezpečné zázemí pro své obyvatele. Vstup do domu je na čipy a celý objekt je monitorován kamerovým systémem, vlastní plynová kotelna, která celkově přispívá k nižším nákladům na provoz celého domu. Velkým benefitem je také možnost parkování přímo před domem na vlastním pozemku bytového družstva. Pro jedno auto získáte parkovací kartu. Měsíční poplatky: 2,155,-Kč + pronájem sklepa 500,-Kč Elektřina cca 1,300,-Kč / měsíc s tím, že zůstává na majiteli Plyn cca 400,-Kč / měsíc s tím, že zůstává na majiteli ( plyn je pouze na sporák) Kauce: 40.000,-Kč Lokalita Újezd nad Lesy Rohožník patří mezi velmi oblíbené rezidenční části Prahy díky kombinaci klidného bydlení a kompletní občanské vybavenosti. V docházkové vzdálenosti najdete například supermarket Albert, další obchody, služby, lékaře, mateřské i základní školy. Dopravní dostupnost zajišťuje konečná zastávka MHD Sídliště Rohožník, odkud se pohodlně dostanete na metro B Černý Most. V budoucnu navíc výrazně pomůže dokončení Pražského okruhu, které přinese zklidnění dopravy v celé oblasti. Milovníci přírody ocení především blízkost Klánovického lesa, jednoho z největších lesních komplexů v Praze. Stačí sednout na kolo, přejet silnici a během pár minut jste v přírodě, kde můžete trávit volný čas sportem, procházkami nebo rodinnými výlety. Pokud tedy hledáte klidné bydlení s přírodou na dosah a zároveň plnou občanskou vybaveností, tato lokalita vám nabídne ideální kombinaci obojího. <a href="https://www.eurobydleni.cz/domy/rodinny-dum/hradec-kralove/obec-hradec-kralove/pronajem/"><strong>Pronájem rodinného domu Hradec Králové</strong></a>
Pronájem, Byt 3+kk, Praha 7
Nabízíme k pronájmu prostorný byt (3+kk), který se nachází ve velmi žádané části Prahy 7 - Holešovice, v uzavřeném areálu bývalého Holešovického…
Pronájem, Byt 3+kk, Praha 2
Nabízíme k pronájmu luxusní klimatizovaný apartmán 3+kk v prestižní zóně pražských Vinohrad, jen 50m od nádherného parku s kostelem sv. Ludmily.…
Pronájem bytu 3+kk Praha 9, Újezd nad Lesy na Eurobydleni.cz