Makléř: Dvořák Petr
Telefon: 732 903 ...
E-mail: dvorak@ ...
Zobrazit celý kontaktTelefon: 732 903 030
E-mail: dvorak@realitydvorak.cz
Nemovitost nabízí
Reality Dvořák
Dlouhá 705/16, Praha 1
Zobrazit kontakt na RK732 903 030
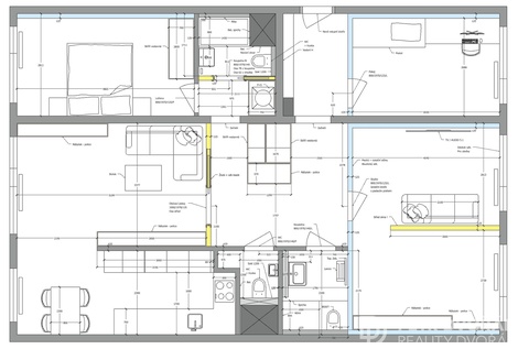
Prostorný byt v osobním vlastnictví dispozice 5+1 s halou o celkové podlahové ploše 110 m2, situovaný ve druhém nadzemním podlaží nízkopodlažního domu rodinného charakteru v historickém jádru starých Stodůlek. Svým uspořádáním i vybavením představuje mimořádně praktické řešení pro dvougenerační soužití — s přirozeně oddělenými zónami, které každé generaci poskytují dostatečné soukromí i pohodlí. Byt prošel v roce 2024 kompletní rekonstrukcí odbornou firmou. Byly vyměněny rozvody elektřiny a vody, radiátory, podlahy včetně podkladů, kuchyňská linka i spotřebiče. Trojskla s přípravou na elektricky ovládané rolety a žaluzie, akusticky upravené stěny a stropy — to vše přispívá ke skutečnému klidu uvnitř bytu bez ohledu na to, co se odehrává ve vedlejší místnosti. Interiér dokreslují dveře z dubové dýhy sladěné s podlahou ve stejném dekoru. Dispozice bytu přirozeně vytváří dvě samostatné obytné zóny. Jihovýchodní část — obývací pokoj s kuchyní a hlavní ložnicí — tvoří uzavřený, na světlo bohatý celek s výhledem na zeleň. Severozápadní křídlo se třemi pokoji nabízí klidné, stinné prostředí ideální pro práci nebo odpočinek. Obě části spojuje prostorná hala s možností dalšího variabilního využití. Každá zóna disponuje vlastním zázemím — byt má celkem dvě koupelny, dvě samostatné toalety, bidet a bidetové sprchy. Soužití dvou domácností tak nevyžaduje žádné kompromisy. Nová lodžie o rozloze 7 m2 s prosklením a deskami Fundermax je orientována do klidného zeleného dvorního prostoru. Ke bytu náleží plynová přípojka s možností přechodu na samostatné vytápění nebo přípravu teplé vody a dva sklepy à 2 m2. Dům prochází v roce 2025 celkovou rekonstrukcí — zateplení pláště, nová střecha, lodžie, vstupní dveře a elektroinstalace. Dokončení je plánováno na podzim 2025. Energetický štítek budovy bude třídy C. Parkování je zajištěno přímo před domem nebo na přilehlém parkovišti — bez modré zóny. Metro Stodůlky a Luka jsou v pěší vzdálenosti, autobusová zastávka se nachází v bezprostřední blízkosti domu. V okolí jsou základní a mateřská škola, Montessori školička, ZUŠ, gymnázium, TJ Sokol, park Panská zahrada a vstup do Centrálního parku.
Prodej výjimečného mezonetového bytu 5+1 s terasami, Praha 7 - Letná
Dobrý den, hledáte něco zcela výjimečného? V tom případě buďte vítáni, právě jste otevřeli inzerát s mimořádnou nabídkou. Prodáváme penthouse -…
Prodej bytu 6+1, 149 m2, Praha, ul. Pod třešněmi
Nabízíme luxusní rezidenční byt 6+1 ve vysokém standardu provedení v rámci komorního rezidenčního projektu o pouhých třech bytových jednotkách.…