Makléř: Šarnova Oleksandra
Telefon: 777 350 ...
E-mail: sharnov ...
Zobrazit celý kontaktTelefon: 777 350 199, 777 350 199
E-mail: sharnova@email.cz
Nemovitost nabízí
Mgr. Jan Vodenka
Prokopova 3, 13000 Praha 4
Zobrazit kontakt na RK602 441 993
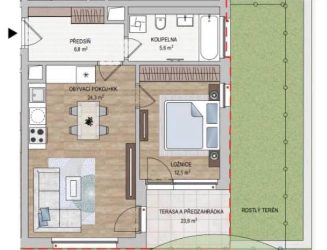
Nabízíme k prodeji atraktivní byt 2+kk o ploše 52 m2 + 24 m2 terasa s předzahrádkou, situovaný ve 2. podlaží moderní novostavby s výtahem v rezidenčním projektu SUOMI Hloubětín (kolaudace 2020). Tento byt představuje ideální kombinaci komfortního bydlení a zajímavé investiční příležitosti. Dominantou nemovitosti je terasa s navazující předzahrádkou, která poskytuje dostatek soukromí i příjemné zázemí pro relaxaci, posezení s rodinou či přáteli nebo ranní kávu na čerstvém vzduchu. Díky jihovýchodní orientaci je byt krásně prosvětlený již od ranních hodin a působí velmi vzdušně a příjemně po celý den. Velkým benefitem jsou venkovní žaluzie na všech oknech, které zajišťují maximální komfort, regulaci světla i teploty a zároveň přispívají k vyššímu soukromí. Interiér je navržen s důrazem na funkčnost a moderní styl. Byt se prodává částečně vybavený (případně dle dohody), což umožňuje novému majiteli přizpůsobit si prostor podle vlastních představ. Součástí je kvalitní kuchyňská linka s vestavnými spotřebiči a moderní koupelna ve velmi dobrém, udržovaném stavu. Projekt SUOMI Hloubětín nabízí klidné a bezpečné bydlení s kompletní občanskou vybaveností v okolí a výbornou dopravní dostupností. Velkou výhodou je tramvajová zastávka pouhých 100 metrů od domu, která zajišťuje rychlé spojení do centra města. K bytu náleží garážové parkovací stání v domě a sklepní kóje, což zvyšuje celkový komfort bydlení. Pokud hledáte moderní bydlení s venkovním prostorem, skvělou dostupností a možností okamžitého využití, tento byt je ideální volbou. Pro více informací nebo sjednání prohlídky mě neváhejte kontaktovat. <a href="https://www.eurobydleni.cz/byty/1_kk/praha-10/obec-strasnice/pronajem/"><strong>Pronájem bytu 1+kk Praha 10, Strašnice</strong></a>
Nový pasivní byt 2+kk s lodžií v Terra Barrandov, Praha 5
Terra Barrandov Praha 5, ulice Silurská 2+kk 55,7 m2 s lodžií 10 m2 v 5. nadzemním podlaží Orientace bytu: V Nabízíme moderní byt 2+kk v 5.…
Prodej, Byty 2+kk, 57 m2 - Viladomy Pitkovice - Praha 10
Nabízíme k prodeji byt 194-05-001 s dispozicí 2+kk (56,6 m2), terasou (20,9 m2), předzahrádkou (22 m2), přiřazeným sklepem a parkovacím stáním v…
Prodej bytu 2+kk Praha 9, Hloubětín na Eurobydleni.cz