Makléř: Vojtěch Gřunděl
Telefon: 736 134 ...
E-mail: vojtech ...
Zobrazit celý kontaktTelefon: 736 134 571
E-mail: vojtech.grundel@qara.cz
Nemovitost nabízí
QARA s.r.o.
Šafaříkova 201/17, 120 00 Praha 2
Zobrazit kontakt na RK
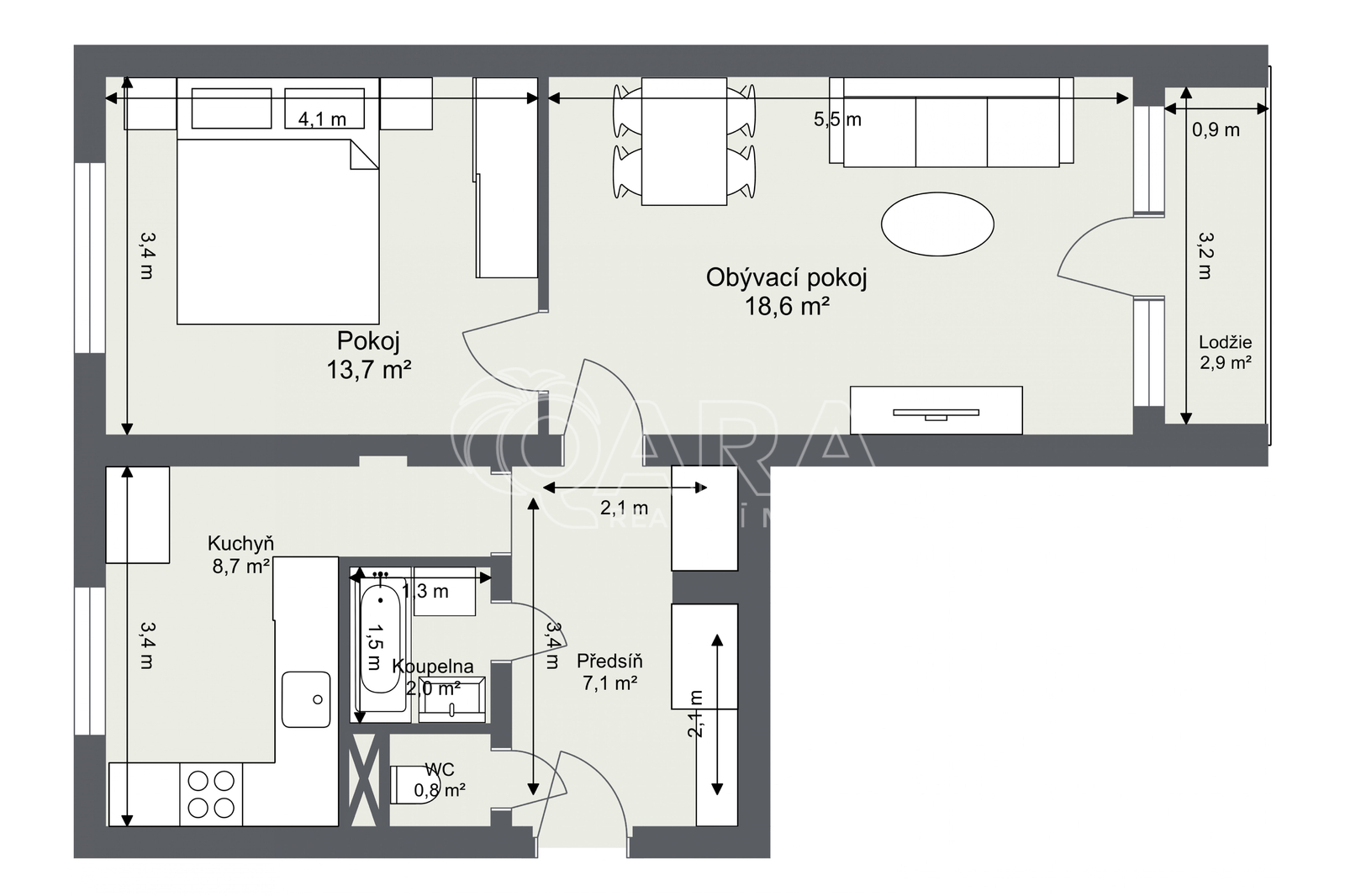
Hledáte bydlení v klidné a žádané lokalitě? Nabízím k prodeji světlý byt 2+1 o výměře 51,1 m2 v pražských Strašnicích. K bytu náleží lodžie (2,8 m2), která je přístupná z obývacího pokoje a sklep (2 m2). Samotný byt je v udržovaném stavu se zděným jádrem. Případně je připraven pro úpravy a modernizace dle vlastních představ nového majitele. Byt má prostornou předsíň (7,2 m2), kde lze vytvořit dostatek úložných prostor. WC a koupelna jsou oddělené. Měsíční náklady na bydlení činí 2 409 Kč (plus elektřina a plyn dle dodavatele). Lokalita Strašnic patří mezi žádané části Prahy díky skvělé kombinaci klidného prostředí a dobré dostupnosti do centra. Stanice metra Strašnická je vzdálena pouhých 5 minut chůze. V okolí se nachází kompletní občanská vybavenost - obchody, restaurace, školy, školky i sportovní a volnočasové vyžití. Cena bytu je 7 390 000,- Kč, včetně provize, právního servisu, bezpečné úschovy a všech poplatků. Byt je možné financovat hypotékou, s čímž vám rád pomůže náš hypoteční specialista. Pro více informací nebo domluvení prohlídky mě neváhejte kontaktovat.
Prodej bytu 2+1, Praha 6 - Dejvice
Ve výhradním zastoupení majitele nabízíme ke koupi byt 2+1 v osobním vlastnictví o podlahové ploše 56 m2. K bytu náleží sklepní kóje o výměře 1 m2.…
Prodej bytu 2+1 Praha 4, Modřany, v ulici Klostermannova, 53,5 m
Nabízíme k prodeji byt o dispozici 2+1 s podlahovou plochou 53,5 m v ulici Klostermannova, Praha 4 Modřany. Nachází se v menším cihlovém domě v…