Aktuálně můžete v lokalitě Praha vybírat z nabídky 2 250 bytů.
Přehled nemovitostí: prodej byty > 4+kk Zpět na přehled nabídek

Prémiový nízkoenergetický byt 4+kk, 153 m2, 2 terasy, sklep, 2 garážová stání, Praha 5-Košíře

153 m2

153 m2

osobní

B - Velmi úsporná

MDO0562-0001

Cena: 27000000 CZK / objekt
Poznámka k ceně: včetně právního servisu a provize RK 1

Poslat dotaz k nabídce
Zásady používání osobních údajů

Prodejce

Makléř:

Telefon: ...

E-mail: ...

Zobrazit celý kontakt

Nemovitost nabízí

Faraon Reality, s.r.o.

Polská 1211/26, 120 00 Praha 120 00

www.faraon.cz

Zobrazit kontakt na RK

Zobrazit všechny nabídky RK

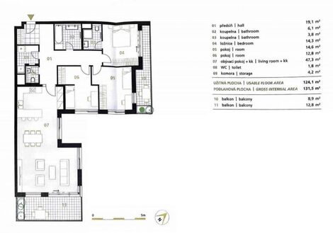
Nízkoenergetický, vysoce nadstandardní byt 4+kk, o celkové ploše 153,2 m2, se dvěma terasami, umístěný ve 2. podlaží prémiové novostavby "top´rezidence Pomezí", postavené roku 2020, přímo vedle lesoparku Cibulka a Vidoule, na dosah centra města. Umístění na vrcholu kopce nabízí neopakovatelné výhledy na panorama Prahy. Dispozici bytu (131,5 m2) tvoří předsíň, 3 ložnice, obývací pokoj s jídelním a kuchyňským koutem, koupelna s vanou, en-suite koupelna se sprchovým koutem a wc příslušející k ložnici, další samostatné wc a technická místnost. Byt má 2 terasy - se vstupem z obývacího pokoje (12,8 m2) a vstupem z ložnice (8,9 m2). Cena zahrnuje také prostorný sklep a 2 parkovací stání v suterénu domu. Moderní technologie a vysoké standardy bytu podtrhují jeho špičkovou kvalitu - decentrální větrání s rekuperací tepla i vlhkosti a funkcí dochlazování, inteligentní ovládání domácnosti, dřevěné masivní podlahy s integrovaným fan-coil topením, velkoformátová dřevěná okna s izolačním trojsklem, venkovní elektricky ovládané hliníkové žaluzie, podlahové topení v koupelnách, značková sanita a obklady, protipožární čidla, světelný senzor pohybu. K dispozici je optický internet s rozvody ve všech pokojích. Za zmínku stojí designové osvětlení všech místností a nábytek na míru v provedení dub - lak v pudrovém odstínu, vyrobený dle návrhu interiérové designérky. V bytě je velké množství důmyslně řešených úložných prostor, s osvětlením uvnitř i vně. Kuchyňská linka je vybavena spotřebiči BOSCH nejvyšší třídy, indukční varná deska má integrované odsávání. Osvěžující komfort nabízí americká lednice s ledovačem nebo vestavěná vinotéka. Pracovní deska kuchyňské linky je z umělého kamene Corian. Velmi žádaná prémiová lokalita s kompletní občanskou vybaveností. Nedaleko se nachází škola, školka, potraviny, restaurace, sportoviště, pošta apod. Za zábavou a nákupy lze dojet do nedalekého obchodního centra Nový Smíchov, nebo Galerie Butovice. Bezprostřední blízkost rozlehlého lesoparku zaručuje rozličné možnosti relaxace a sportovního vyžití, krátkou procházkou lze dojít na kamennou romantickou rozhlednu Cibulka a další parková zastavení. Vynikající je dostupnost do centra Prahy, autem i MHD. Stanice metra Anděl 10 min autobusem. 800 metrů od domu je vlaková zastávka s přímým spojením na hlavní nádraží. Podlahová plocha 131,5 m2, terasa 12,8 m2, terasa 8,9 m2 + sklep 9 m2, dvě garážová parkovací stání. PENB-B ID nemovitosti MDO0562-0001.




Prodej bytu 4+kk Praha 5, Košíře na Eurobydleni.cz


Nahoru