Aktuálně můžete v lokalitě Praha vybírat z nabídky 2 477 bytů.
Přehled nemovitostí: prodej byty > 4+kk Zpět na přehled nabídek

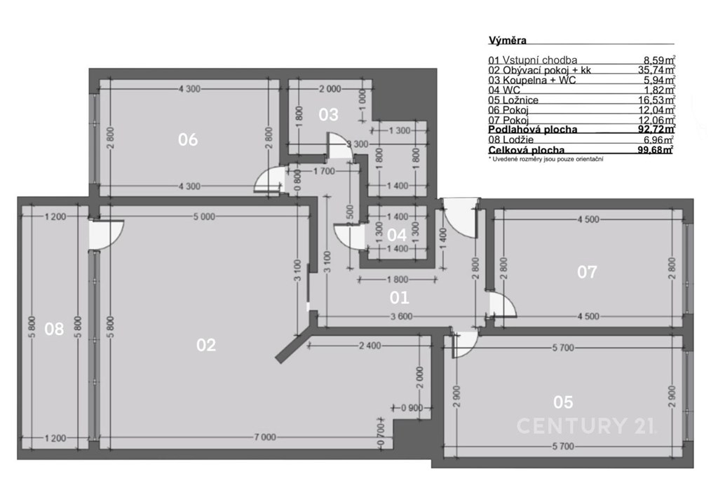
Prodej bytu 4+kk se zasklenou lodžií a sklepem, 104m2, P9 Černý Most, ulice Vybíralova, Praha

104 m2

93 m2

osobní

C - Úsporná

963614

03.04.2026

Cena: 9500000 CZK / objekt

Poslat dotaz k nabídce
Zásady používání osobních údajů

Prodejce

Makléř: Ing. Hais Martin

Telefon: 226 256 ...

E-mail: info.re ...

Zobrazit celý kontakt

Nemovitost nabízí

CENTURY 21 4fin Reality

Na Hřebenech II 1718/8, 140 00 Praha 4

www.4finreality.cz

Zobrazit kontakt na RK

Zobrazit všechny nabídky RK

Černý Most nabízí příjemné a klidné prostředí, blízkost přírody, širokou škálu služeb a výbornou dopravní dostupnost do centra města. Tato lokalita má rozhodně co nabídnout - a aktuálně dokonce i výjimečnou příležitost, neboť nabízený prostorný byt o dispozici 4+kk pořídíte za cenu, která na pražském trhu jen mírně převyšuje částky běžně požadované za 2+kk v novostavbě - rozdíl ve velikosti a komfortu je však zásadní. Co mě na místě zaujalo nejvíc? Rozhodně rozlehlá zeleň - a to nejen tak ledajaká. Tady se příroda nejen udržuje, ale i rozvíjí. Zelené plochy tu svou rozlohou dokonce předčí i pražskou Stromovku. Klidnou procházkou se dostanete až ke golfovému hřišti, Kyjskému rybníku, Martiňáku nebo k originální rozhledně Doubravka. Pokud máte pejska, budete nadšení - tenhle kout Prahy si zamiluje stejně jako vy. A když budete mít chuť spojit přírodu s dobrou gastronomií, vydáte se do zámeckého parku v Dolních Počernicích, dáte si poctivé pivo v Počernickém pivovaru a skvělé jídlo v italské restauraci Al Mulino. A věřte, že to není všechno. Černý Most překvapí i aktivní duše. Každoročně se tu koná populární Gladiator Race, jen pár kroků od domu najdete sportovní a komunitní centrum Plechárna s bistrem, několik fitness studií, venkovní posilovnu, skatepark, inline dráhy a cyklostezky, které vás dovedou až do Klánovic a dál - třeba až do Poděbrad. A co každodenní život? Mateřská školka je přímo před domem, vaše děti zvládnou dojít bezpečně samy do školy za tři minuty. V sousedním vchodu najdete menší obchod se základními potravinami, nápoji a drogerií. Na větší nákupy, do kina nebo na dobrou kávu si rádi zajdete do Centra Černý Most. Metro je vzdáleno deset minut chůze, nebo pohodlně tři minuty autobusem - a za půl hodiny jste v centru Prahy. V docházkové vzdálenosti je i poliklinika a veterinář. A co samotný byt? Je krásně prosvětlený, s velmi příjemnou a praktickou dispozicí. Hned při vstupu vás okouzlí prostorný obývací pokoj - osobně jsem v něm měl pocit, že jsem v rodinném domě. Na něj navazuje zasklená lodžie, která se brzy rozšíří a posune vaše bydlení na ještě vyšší úroveň. Sklepní prostor je sdílený jen se sousedkou a je bezpečně uzavřený. Dům má pouze osm bytových jednotek, což zajišťuje příjemné, komorní a přátelské prostředí. Obyvatelé do něj pravidelně investují, aby se tu bydlelo ještě lépe, a to třeba i formou plánovaného rozšíření lodžií. Přijďte se sami přesvědčit, jak skvělé může být bydlení na Černém Mostě - praktické, zelené, klidné a přitom s výbornou dopravní dostupností.



Nahoru