Makléř: Petrušková Iva
Telefon: 728 315 ...
E-mail: iva.pet ...
Zobrazit celý kontaktTelefon: 728 315 928
E-mail: iva.petruskova@century21.cz
Nemovitost nabízí
CENTURY 21 Birdie Reality - pobočka NextRound
28. října 813/248, 709 00 Ostrava
www.century21.cz/kancelar-birdie-reality-pobocka-nextround
Zobrazit kontakt na RK
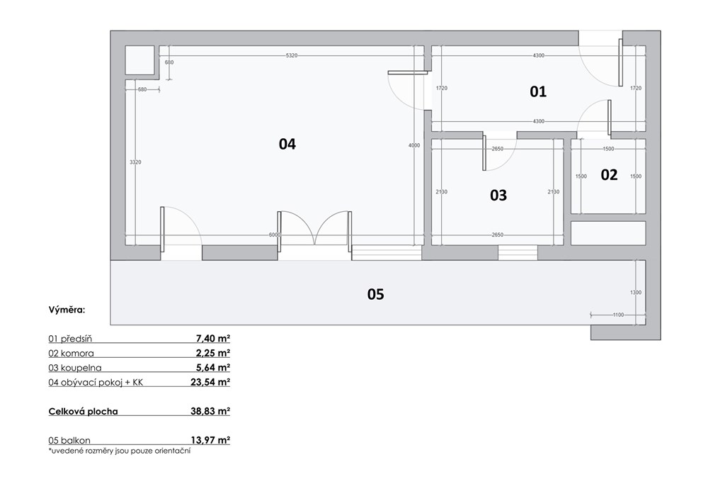
Nabízím k prodeji krásnou bytovou jednotku 1+kk o užitné ploše 39,1 m2 ve 4. patře moderního bytového domu na žádané adrese Na Výrovně v Praze 5. ______________________________________________ Byt je situován v jižní části budovy, což mu dodává výjimečnou světlost a příjemnou atmosféru. Nechybí ani prostorná lodžie o velikosti 15,2 m2, která poskytuje ideální prostor pro ranní kávu, odpočinek po práci nebo drobné zahradničení. ______________________________________________ Komfort a praktičnost v jednom: Dispozice bytu je navržena s důrazem na maximální využití prostoru a pohodlí. Součástí je také praktická komora, která nabízí dostatek místa pro uskladnění věcí. Byt je díky své velikosti i promyšlenému uspořádání vhodný pro jednotlivce, páry i jako investice k pronájmu. Velkým benefitem je i možnost úpravy dispozice na 2+kk - kuchyni lze umístit do přední části bytu a vzadu vytvořit klidnou ložnici. Další velkou výhodou je vlastní garážové stání přímo v domě, což v této lokalitě představuje skutečný komfort. Samozřejmostí je výtah a moderní konstrukční řešení s nízkými provozními náklady. ______________________________________________ Bytový dům se nachází v jedné z nejvyhledávanějších částí Prahy 5. Dopravní dostupnost je vynikající - v blízkosti je metro linky B (Anděl, Smíchovské nádraží), hustá síť tramvají a autobusů i rychlé napojení na dálniční síť. Přímo u domu je autobusová zastávka s přímým spojením na Zličín, kde se nachází velké obchodní centrum včetně IKEY a zároveň odtud jezdí i přímá linka na letiště - cesta trvá pouhých 15 minut. Občanská vybavenost je zde na velmi dobré úrovni. V okolí jsou školy, školky, lékařská zařízení, kavárny, restaurace a obchody všeho druhu. Milovníky nakupování potěší nedaleké centrum Anděl City i menší specializované obchody a farmářské trhy. V docházkové vzdálenosti (cca 1 km od domu) se nachází Centrální park i Dalejské a Prokopské údolí. Najdete zde dětská hřiště, cyklostezky a rozsáhlé zalesněné plochy vhodné i pro delší procházky či výlety. _____________________________________________ Investiční příležitost: Byt je díky své poloze a dispozici vhodný nejen pro vlastní bydlení, ale i jako investice. Tato část Prahy je dlouhodobě velmi žádaná nájemníky, což zajišťuje stabilní výnos z pronájmu.
Krásný pasivní byt 1+kk s lodžií v Terra Barrandov, Praha 5
Terra Barrandov Praha 5, ulice Silurská 1+kk 43,8 m2 s lodžií 5,3 m2 v 2 nadzemním podlaží Orientace bytu: Z Nabízíme moderní byt 1+kk v 2…
Prodej hezkého bytu 1+kk/B/S, 26m2, Praha 10 - Horní Měcholupy, Hornoměcholupská
Prodej hezkého bytu 1+kk/B/S, 26 m2, Praha 10 - Horní Měcholupy, Hornoměcholupská Hledáte vlastní dostupné bydlení v novostavbě? Toužíte po balkonu?…