Makléř: Bc. Chotinskij Igor
Telefon: 773 654 ...
E-mail: info@sm ...
Zobrazit celý kontaktTelefon: 773 654 888
E-mail: info@smartrelo.cz
Nemovitost nabízí
Smart Relo s.r.o.
Krakovská 1695/21, 11000 Praha 1
Zobrazit kontakt na RK
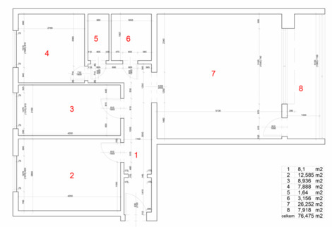
ID: SaleTupolevova Nabízíme k prodeji hezký a velmi příjemný byt 4+kk, 77m2 včetně zasklené lodžie 8m2 a sklepu 1m2 v 1. patře panelového domu v žádané lokalitě Praha 9 - Letňany. Byt se skládá z obývacího pokoje s kuchyní a vstupem na lodžii, ložnice, dětského pokoje, menší ložnice pro hosty (lze využít jako pracovnu nebo dle přání), koupelny s vanou, samostatného WC a chodby, ze které je přístup do všech výše uvedených prostor. Byt je kompletně zařízený (nábytek je zahrnut v prodejní ceně). V okolí veškerá občanská vybavenost. Nachází se v bezprostřední blízkosti OC Letňany (obchody, restaurace, banky, Tesco, kino atd). Nedaleko je pošta. V okolí jsou supermarket Albert a Penny Market, několik dětských hřišť a tenisová hala a Aquapark. Pro procházky či běh je nedaleko lesopark Letňany. Perfektní dopravní dostupnost, 4 min. na metro C - Letňany. Byt je připraven k prodeji Cena: 8 950 000 Kč Volejte, pište: Viber, WhatsApp, Telegram Při telefonování prosím sdělte ID číslo bytu. <a href="https://www.eurobydleni.cz/byty/3_kk/praha-5/obec-smichov/prodej/"><strong>Prodej bytu 3+kk Praha 5, Smíchov</strong></a>
Prodej prostorného a moderního bytu 4+kk, 127,8 m2, s balkonem a lodžií, Praha Letňany
V moderní a klidné části Prahy - Letňanech - se nachází výjimečný byt 4+kk o rozloze 127,8 m2 s balkonem a lodžií, který spojuje elegantní design,…
Prodej, byt 4+kk/2L, 104 m2, Praha 10-Malešice
V zastoupení majitele nabízíme k prodeji prostorný a světlý byt 4+kk o celkové ploše 104 m2, který se nachází ve 2. podlaží revitalizovaného…
Prodej bytu 4+kk Praha 9, Letňany na Eurobydleni.cz