Makléř: Jiří Šimon
Telefon: 602 304 ...
E-mail: jirisim ...
Zobrazit celý kontaktTelefon: 602 304 070
E-mail: jirisimon@jirisimon.cz
Nemovitost nabízí
ORANGE PROPERTY s.r.o.
Kaprova 42/14, Praha
Zobrazit kontakt na RK
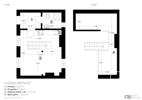
Nabízím vám na prodej družstvení byt (převod členských práv v bytovém družstvu spojené s nájmem bytu) 1+kk s vestavěným patrem na adrese Vítkova 236/15, Praha 8 - Karlín. Chcete bydlet v útulném bytě v docházkové vzdálenosti centra Prahy v sousedství Karlínského náměstí? V přímém sousedctví je umístěna Karlínská synagoga. Nebo chcete investovat do bytu vhodného pro dlouhodobý pronájem ve skvělé lokalitě? Máme pro vás jedinečnou nabídku! Byt má splacenou veškerou anuitu a nic jiného hradit nebudete. Byt je úplně nový a budete jeho první uživatelé. Jsou zde vysoké stropy, které umožnily výstavbu dřevěného vestavěného patra s výměrou 10 m2 s částí na spaní a částí pro pracovnu s výškou 2 metry. Je zde kuchyň, koupelna a veškeré vybavení. Byt je připravený k nastěhování. Přístupný je z pavlače. O nemovitosti: Adresa: Vítkova 236/15, Praha 8 - Karlín Dispozice: 1+kk + vestavené patro na spaní a pracovnu. Rozloha: 30 m + vestavěné patro 10 m. Umístění: 3. patro (4. nadzemní podlaží) v cihlovém bytovém domě bez výtahu. Vlastnictví: Družstevní (financování hypotékou je možné pouze se zástavou jiné vaší nemovitosti). Parkování: před domem na modrých zónách. Přednosti bytu: Prostorný obývací pokoj s kuchyňským koutem. Prostor na spaní a pracovna ve vestavěném patře. Byt je krásně prosvětlený a je v domě, který je kompletně opraven a ve velmi dobrém stavu. Další nespornou výhodou je jeho umístění v centru Karlína v docházkové vzdálenosti do centra Prahy a za rohem od Karlínského náměstí. Investiční příležitost: Vhodné pro vlastní bydlení i jako investice: V této lokalitě je vysoká poptávka po pronájmech Atraktivní nájmy: Potenciál pro stabilní a zajímavý příjem z pronájmu Financování: Byt je v družstevním vlastnictví: Financování hypotékou je možné pouze se zástavou jiné vaší nemovitosti. Převod do vlastnictví se neplánuje. Bezproblémový převod: Vše připraveno k rychlému a hladkému průběhu převodu družstevních práv a vašemu nastěhování. Neváhejte a domluvte si prohlídku ještě dnes! <a href="https://www.eurobydleni.cz/pozemky/zemedelska-puda/hradec-kralove/obec-nove-mesto/prodej/"><strong>Prodej zemědělské půdy Nové Město</strong></a>
Prodej hezkého bytu 1+kk/B/S, 26m2, Praha 10 - Horní Měcholupy, Hornoměcholupská
Prodej hezkého bytu 1+kk/B/S, 26 m2, Praha 10 - Horní Měcholupy, Hornoměcholupská Hledáte vlastní dostupné bydlení v novostavbě? Toužíte po balkonu?…
Prodej, Byty 1+kk, 34 m2 - Rezidence Jižní terasy - Háje
Nabízíme k prodeji byt 218-11-034 s dispozicí 1+kk (34 m2), lodžií (6,9 m2), přiřazeným sklepem a parkovacím stáním v novém projektu Rezidence Jižní…
Prodej bytu 1+kk Praha 8, Karlín na Eurobydleni.cz