Aktuálně můžete v lokalitě Praha vybírat z nabídky 2 168 bytů.
Přehled nemovitostí: prodej byty > 1+kk Zpět na přehled nabídek

Družstevní byt 1+kk s vestavěným patrem Praha 8 Karlín, Vítkova ul.

neuvedeno

neuvedeno

družstevní

G - Mimořádně nehospodárná

N00470

20.01.2026

Cena: 7990000 CZK / objekt
Poznámka k ceně: cena je kompletní a obsahuje všechny poplatky 1

Poslat dotaz k nabídce
Zásady používání osobních údajů

Prodejce

Makléř: Jiří Šimon

Telefon: 602 304 ...

E-mail: jirisim ...

Zobrazit celý kontakt

Nemovitost nabízí

ORANGE PROPERTY s.r.o.

Kaprova 42/14, Praha

Zobrazit kontakt na RK

Zobrazit všechny nabídky RK

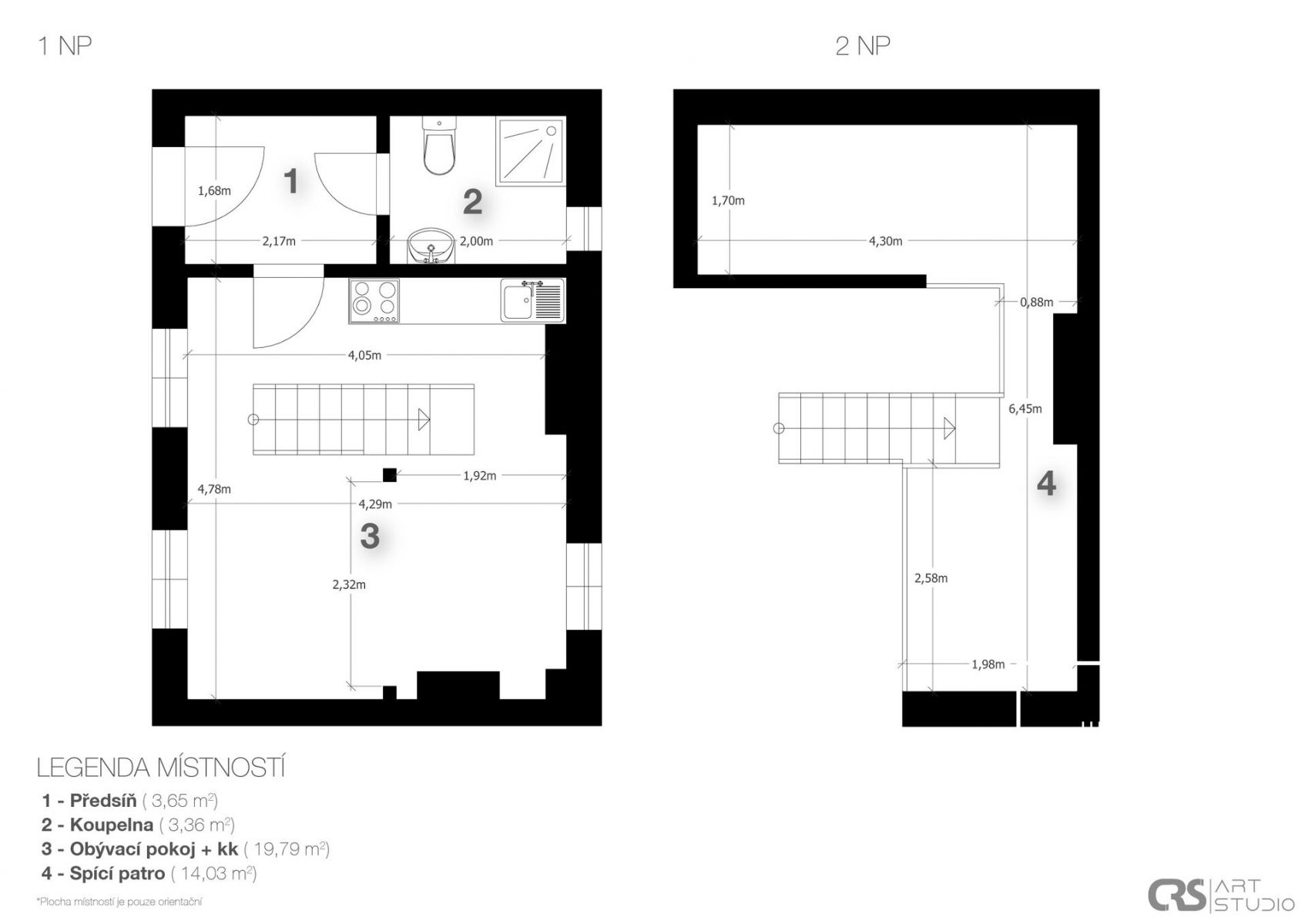
Nabízím vám na prodej družstvení byt (převod členských práv v bytovém družstvu spojené s nájmem bytu) 1+kk s vestavěným patrem na adrese Vítkova 236/15, Praha 8 - Karlín. Chcete bydlet v útulném bytě v docházkové vzdálenosti centra Prahy v sousedství Karlínského náměstí? V přímém sousedctví je umístěna Karlínská synagoga.  Nebo chcete investovat do bytu vhodného pro dlouhodobý pronájem ve skvělé lokalitě? Máme pro vás jedinečnou nabídku!  Byt má splacenou veškerou anuitu a nic jiného hradit nebudete.  Byt je úplně nový a budete jeho první uživatelé. Jsou zde vysoké stropy, které umožnily výstavbu dřevěného vestavěného patra s výměrou 14 m2 s částí na spaní a částí pro pracovnu s výškou 2 metry. Je zde kuchyň, koupelna a veškeré vybavení. Byt je připravený k nastěhování. Přístupný je z pavlače. O nemovitosti: Adresa: Vítkova 236/15, Praha 8 - Karlín Dispozice: 1+kk + vestavené patro na spaní a pracovnu. Rozloha: 27 m + vestavěné patro 14 m. Umístění: 3. patro (4. nadzemní podlaží) v cihlovém bytovém domě bez výtahu. Vlastnictví: Družstevní (financování hypotékou je možné pouze se zástavou jiné vaší nemovitosti). Parkování: před domem na modrých zónách. Přednosti bytu: Prostorný obývací pokoj s kuchyňským koutem. Prostor na spaní a pracovna ve vestavěném patře. Byt je krásně prosvětlený a je v domě, který je kompletně opraven a ve velmi dobrém stavu. Další nespornou výhodou je jeho umístění v centru Karlína v docházkové vzdálenosti do centra Prahy a za rohem od Karlínského náměstí.  Investiční příležitost: Vhodné pro vlastní bydlení i jako investice: V této lokalitě je vysoká poptávka po pronájmech Atraktivní nájmy: Potenciál pro stabilní a zajímavý příjem z pronájmu Financování: Byt je v družstevním vlastnictví: Financování hypotékou je možné pouze se zástavou jiné vaší nemovitosti. Převod do vlastnictví se neplánuje.  Bezproblémový převod: Vše připraveno k rychlému a hladkému průběhu převodu družstevních práv a vašemu nastěhování. Neváhejte a domluvte si prohlídku ještě dnes! <a href="https://www.eurobydleni.cz/byty/2_1/trebic/obec-namest-nad-oslavou/pronajem/"><strong>Pronájem bytu 2+1 Náměšť nad Oslavou</strong></a>




Prodej bytu 1+kk Praha 8, Karlín na Eurobydleni.cz


Nahoru