Makléř: Vagenknecht Roman
Telefon: 724 216 ...
E-mail: roman.v ...
Zobrazit celý kontaktTelefon: 724 216 553
E-mail: roman.vagenknecht@housevip.cz
Nemovitost nabízí
House ViP, s.r.o.
Veletržní 924/14, 170 00 Praha - Holešovice
Zobrazit kontakt na RK
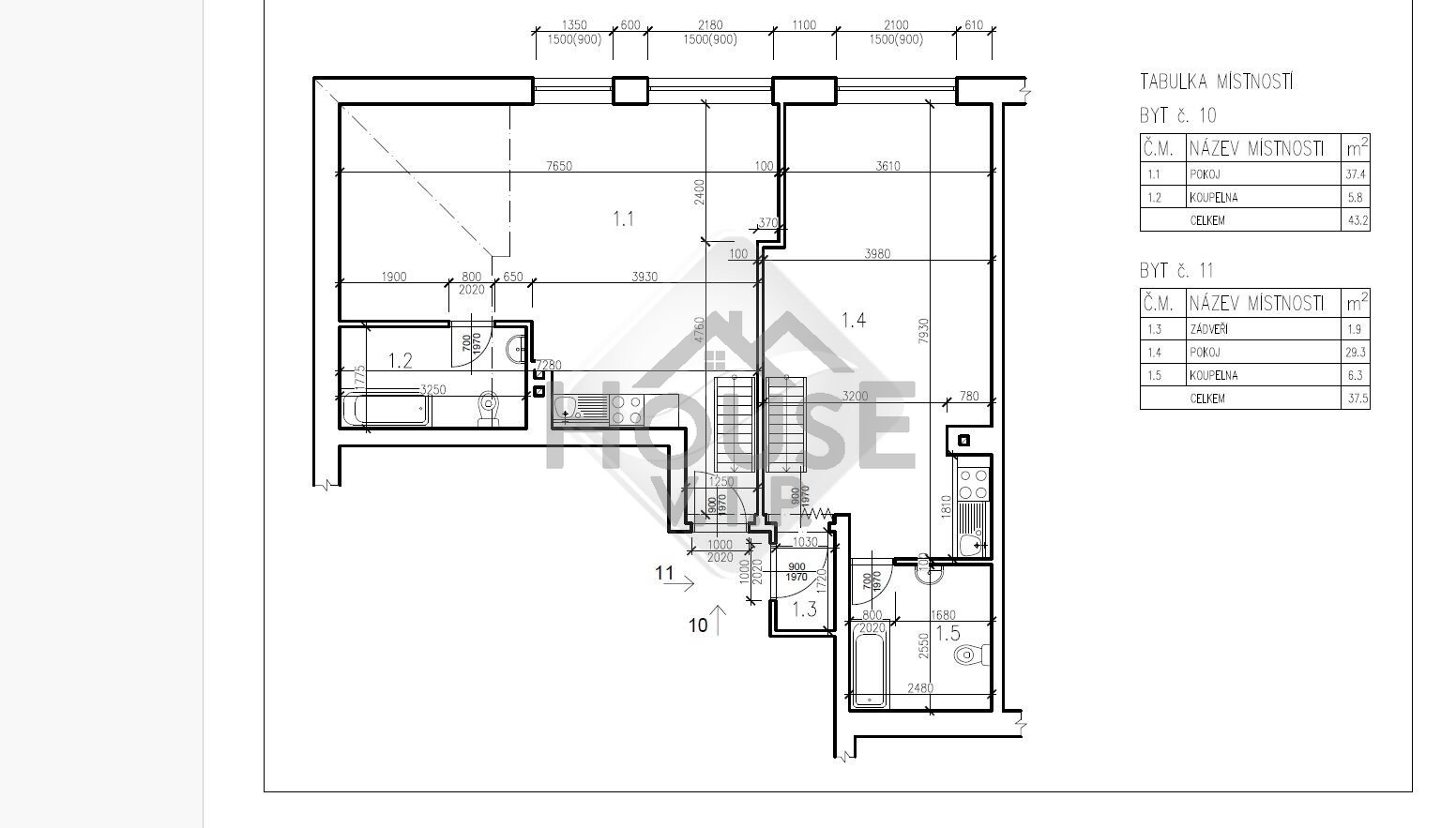
Nabízíme exkluzivně mezonetový byt 1+kk o celkové výměře 44 m2 v družstevním vlastnictví se splacenou anuitou a jižní orientací v klidné lokalitě Prahy 6. Byt se nachází ve 3 podlaží bez výtahu. Dispozice 1+kk v mezonetovém uspořádání je kreativní výzvou pro dokonalé využití prostoru. Na hlavní obytný prostor o výměře 37 m2 se vstupem do patra, která má 7 m2, navazuje kuchyňský kout a koupelna s WC. Součástí bytu je zádveří s plynovým kotlem. Hlavní prostor má plovoucí podlahy, ostatní prostory mají dlažbu s podlahovým topením, okna plastová. Dům je cihlový z roku 1948 ve výborném stavu. Blízké okolí nabízí nákupní a restaurační možnosti, dětské hřiště i velmi dobrou dostupnost MHD - 3 minuty na metro Veleslavín a blízkost letiště Ruzyně i skvělé parkovací možnosti. Pro další období připravujeme k prodeji vedlejší byt 1+kk, který bude možné s nabízeným bytem spojit. Družstvo souhlasí s vybudováním pohodlné střešní terasy. Byt bude po dohodě s novým družstevníkem vybaven novou kuchyní a plovoucími podlahami. Na rok 2026 je plánována možnost odkupu bytu do OV.
Prodej bytu 1+kk/B, už. plocha 51,36 m2, Praha 9 Vysočany
Nabízíme k prodeji atraktivní byt o dispozici 1+kk s balkonem, s celkovou užitnou plochou 51,36 m2 (z toho byt 45,33 m2 a balkon 6,03 m2). Jednotka…
Prodej, Byt 1+kk, Praha 9
Nabízím k prodeji výjimečný byt 1+kk o podlahové ploše 36,53 m2 po kompletní, luxusní rekonstrukci. Každý detail zde byl promyšlen tak, aby spojoval…