Makléř: Milan Šámal
Telefon: 602 100 ...
E-mail: samal@j ...
Zobrazit celý kontaktTelefon: 602 100 722
E-mail: samal@justo.cz
Nemovitost nabízí
JUSTO Česká republika
Korunní 2569/108, 101 00 Praha 10
Zobrazit kontakt na RK
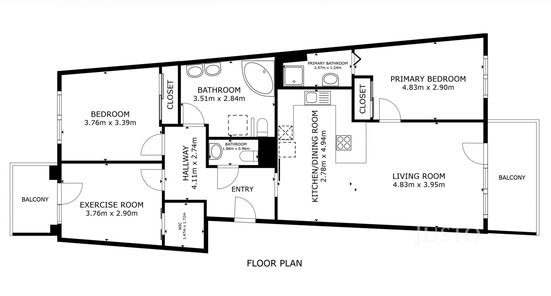
Ve výhradním zastoupení majitele Vám zprostředkování prodeje krásného a prostorného bytu o dispozici 4+kk v osobním vlastnictví. Byt je ve velmi dobrém stavu a nachází se ve 2. nadzemním podlaží na Švejcarově náměstí v pražských Stodůlkách. Byt je ideální pro rodinu s dětmi. Klíčové informace k nemovitosti: - Dispozice 4+kk s velmi praktickým půdorysem - Plocha bytu 98,6 m - K bytu náleží: balkon 3,9 m, lodžie 7,6 m umožňující venkovní posezení komora 9,1 m, sklep 2,9 m zajišťující dostatek úložných prostor parkovací stání sbezproblémovým vjezdem - Vbytě jsou dvě koupelny a dvě toalety - Dřevěná podlaha přispívá k pocitu útulnosti a komfortu - Možnost dokoupení 2. parkovacího stání za 750000 Kč - Bez právních vad - Byt je v udržovaném domě s výtahem zroku 2009 - Dům má velmi nízkou energetickou náročnost stupeň B - Kdomu náleží uzavřené dětské hřiště Klíčové informace k lokalitě: - Klidná lokalita sdostatkem zeleně vokolí (Dalejské údolí, Prokopské údolí) - V okolí najdete kompletní občanskou vybavenost včetně obchodů, školek, škol i možností volnočasového vyžití (Jeremi) - Z blízké zastávky Raichlova vás autobus doveze ke stanice metra "B" Luka. - V blízkosti se nachází nákupní galerie Butovice, Metropole Zličín. - Velmi dobrá dostupnost na dálnici D5 směrem na Plzeň a letiště Ruzyně Důležité informace k prodeji: - Zájemce nehradí provizi RK! - Majitel si vyhrazuje právo výběru nejvýhodnější nabídky v případě více zájemců - Možnost zprostředkování atraktivního financování Pokud Vás tato nemovitost zaujala, neváhejte mě kontaktovat, rád Vám tento krásný byt osobně představím. <a href="https://www.eurobydleni.cz/byty/2_1/praha-6/obec-brevnov/pronajem/"><strong>Pronájem bytu 2+1 Praha 6, Břevnov</strong></a>
Prodej, Byt 4+kk, Praha 4
Mezonet s panoramatickými výhledy nad Prahou -prostor, světlo a soukromí v srdci Krče Existují byty, které splňují očekávání. A pak jsou ty, které je…
Prodej bytu 4+kk, 113 m2, Praha, ul. Ocelkova
Nabízíme k prodeji prostorný byt 4+kk o užitné ploše 113 m2, situovaný v 5. patře na Černém Mostě. Byt se nachází v dobře udržovaném stavu a nabízí…
Prodej bytu 4+kk Praha 5, Stodůlky na Eurobydleni.cz