Makléř: Mezková Erika
Telefon: 739 628 ...
E-mail: erika.m ...
Zobrazit celý kontaktTelefon: 739 628 801
E-mail: erika.mezkova@century21.cz
Nemovitost nabízí
CENTURY 21 Birdie Reality - pobočka NextRound
28. října 813/248, 709 00 Ostrava
www.century21.cz/kancelar-birdie-reality-pobocka-nextround
Zobrazit kontakt na RK
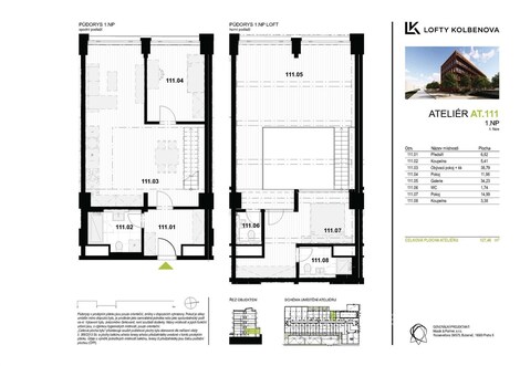
Prodej byt 4+kk, Praha 9 - Vysočany | designové bydlení v projektu Lofty Kolbenova Nabízíme k prodeji výjimečný loftový byt o dispozici 4+kk v projektu Lofty Kolbenova, Praha 9 - Vysočany. Byt se nachází v 1. nadzemním podlaží a disponuje podlahovou plochou 128,08 m2. Základní parametry ✓ dispozice: 4+kk ✓ podlahová plocha: 128,08 m2 ✓ podlaží: 1. NP ✓ parkování: možnost dokoupení ✓ sklep: možnost dokoupení ✓ energetická náročnost: B - velmi úsporná Stav nemovitosti Jedná se o byt v kompletně zrekonstruovaném industriálním objektu, který byl citlivě přeměněn na moderní rezidenční projekt Lofty Kolbenova. Byly zde zachovány typické prvky jako vysoké stropy, betonové konstrukce a velkoformátová tovární okna. Tento developerský projekt získal ocenění jako uznání za nejlepší stavbu využívající stávající objekt v bývalé průmyslové lokalitě. Dispozice V přízemní části jednotky se nachází koupelna se sprchovým koutem a toaletou, dále otevřený prostor připravený pro kuchyňskou linku s jídelní zónou a dva samostatné pokoje. V horním podlaží je k dispozici další otevřený obytný prostor, samostatná toaleta a hlavní ložnice s vlastní koupelnou vybavenou sprchovým koutem a toaletou. Příslušenství Standard zahrnuje moderní technologie, jako je klimatizace, podlahové vytápění a rekuperací, která zajišťuje stabilní a zdravé vnitřní klima. Samozřejmostí jsou také předokenní žaluzie pro regulaci světla a teploty. Interiér kombinuje industriální prvky s kvalitními materiály - dřevěné podlahy v dekoru dubu, designové schodiště, osvětlení v industriálním stylu, stěna z pohledového betonu, ocelové detaily a přiznané betonové konstrukce. Pokoje jsou oddělené designovými skleněnými příčkami. K bytu je možné dokoupit parkovací stání a sklep. Byt je vhodný jak pro rodinné bydlení, tak i pro klienty hledající prostor s charakterem a originalitou. Lokalita Projekt Lofty Kolbenova se nachází v rychle se rozvíjející části Prahy 9 - Vysočany, která postupně mění svůj původní industriální charakter na moderní městskou čtvrť. Lokalita nabízí kombinaci nové rezidenční výstavby, služeb a autentické atmosféry bývalých průmyslových areálů. Skvělou dopravní dostupnost zajišťuje metro B Kolbenova (cca 4 minuty chůze) a tramvajová zastávka vzdálená jen 2 minuty. Do centra města se dostanete přibližně za 15 minut. V okolí najdete kompletní občanskou vybavenost - obchody, restaurace, kavárny i sportovní zařízení. V blízkosti se nachází také oblíbená lokalita Pragovka s kulturním a komunitním přesahem. Pro volný čas lze využít parky Podviní a Zahrádky nebo cyklostezku podél Rokytky. Lokalita tak nabízí vyvážené spojení městského života a zeleně.
Exklusivní penthouse, prodej nový prémiový střešní byt 168 m2 s terasa 58m2 a střešní zahrada 65m2 s
Představujeme vám rezidenci, výjimečný penthouse 4+kk, zasazený do nejvyššího podlaží moderní VilyLUKA.cz , nabízí úroveň soukromí, prostoru a…
Prodej, Byty 4+kk, 105 m2 - Viladomy Pitkovice - Praha 10
Nabízíme k prodeji byt 194-11-069 s dispozicí 4+kk (104,9 m2), terasou (67,5 m2), přiřazeným sklepem, parkovacím a garážovým stáním v novém projektu…