Makléř: Kaláb Jakub
Telefon: 725 807 ...
E-mail: jakub@k ...
Zobrazit celý kontaktTelefon: 725 807 555
E-mail: jakub@kalabreality.cz
Nemovitost nabízí
Hit Reality
Vranové 1.díl 252, Malá Skála
Zobrazit kontakt na RK
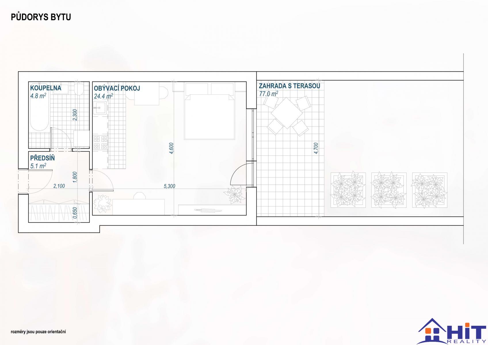
Nabízíme k prodeji moderní byt o dispozici 1+kk o výměře 38 m2, který se nachází v novostavbě z roku 2020 v klidné části Prahy - Hloubětín. Pop praktické stránce jde o velmi dobře řešený byt. Od ostatních ho však odlišuje velkorysý venkovní prostor. K jednotce totiž náleží zahrada s terasou o celkové velikosti 77 m2, která je situována ve výšce prvního patra díky garážím pod domem. Zahrada tak nabízí nejen dostatek prostoru pro odpočinek, ale zároveň i soukromí bez přímého kontaktu s ulicí, což je v pražských poměrech zcela výjimečné. Samotný interiér je světlý, moderní a velmi dobře řešený. Obytný prostor přirozeně navazuje na terasu, čímž se byt opticky zvětšuje a vytváří příjemné propojení interiéru s exteriérem. I přes kompaktní dispozici nabízí dostatek úložného prostoru a komfortní zázemí pro každodenní život. Součástí je také sklep umístěný přímo na patře. V domě je navíc možnost pronájmu garážového stání, aktuálně přibližně za 1 300 Kč měsíčně. Lokalita Hloubětín patří mezi velmi dobře dostupné části Prahy. Stanice metra i tramvaje jsou v docházkové vzdálenosti, stejně jako kompletní občanská vybavenost - obchody, služby, restaurace, fitness centra i parky. Lokalita tak nabízí ideální kombinaci městského života a dostupnosti zeleně. Současný majitel by si přál v bytě zůstat do 1. 8.2026, přičemž po převodu vlastnického práva je připraven hradit tržní nájemné. Pro kupujícího tak může být byt zajímavý i z investičního pohledu s okamžitým výnosem. K nastěhování je byt k dispozici od 1. 8.2026. Tato nemovitost představuje výjimečnou příležitost, jak získat moderní byt s nadstandardním venkovním prostorem v Praze, ať už pro vlastní bydlení nebo jako investici. Pro více informací nebo sjednání prohlídky nás neváhejte kontaktovat. <a href="https://www.eurobydleni.cz/byty/3_kk/brno/obec-stare-brno/pronajem/"><strong>Pronájem bytu 3+kk Brno-město, Staré Brno</strong></a>
Prodej, Byty 1+kk, 34 m2 - Rezidence Jižní terasy - Háje
Nabízíme k prodeji byt 218-11-034 s dispozicí 1+kk (34 m2), lodžií (6,9 m2), přiřazeným sklepem a parkovacím stáním v novém projektu Rezidence Jižní…
Prodej, Byty 1+kk, 35 m2 - Bohdalecké zahrady - Praha 4
Nabízíme k prodeji byt 204-02-112 s dispozicí 1+kk (34,5 m2), balkonem (5,9 m2) a přiřazeným sklepem v novém projektu Bohdalecké zahrady v Praze 4 -…
Prodej bytu 1+kk Praha 9, Hloubětín na Eurobydleni.cz