Makléř: Hofhanzl Jiří
Telefon: 734 474 ...
E-mail: jiri.ho ...
Zobrazit celý kontaktTelefon: 734 474 252
E-mail: jiri.hofhanzl@rh-real.com
Nemovitost nabízí
RH-REAL servis s.r.o.
Nekázanka 881/9, Praha 1 - Nové Město
Zobrazit kontakt na RK
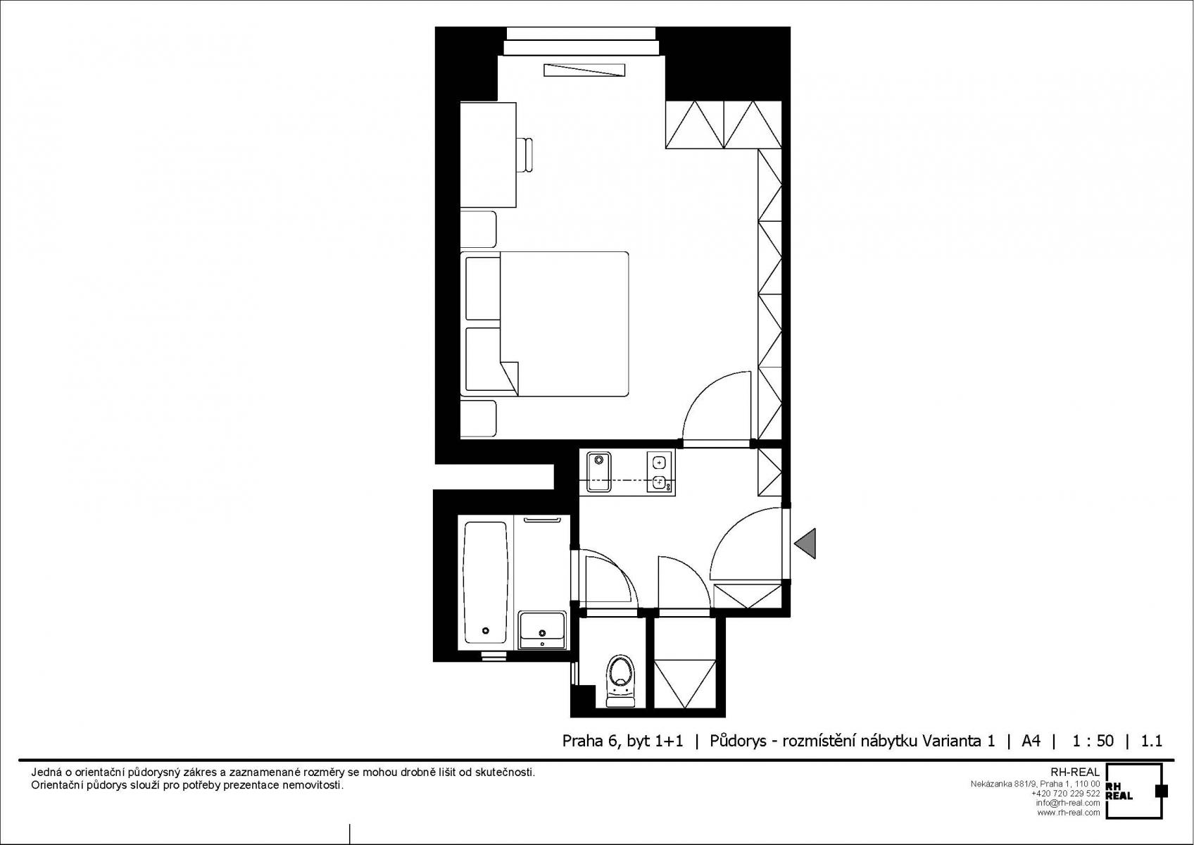
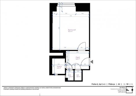
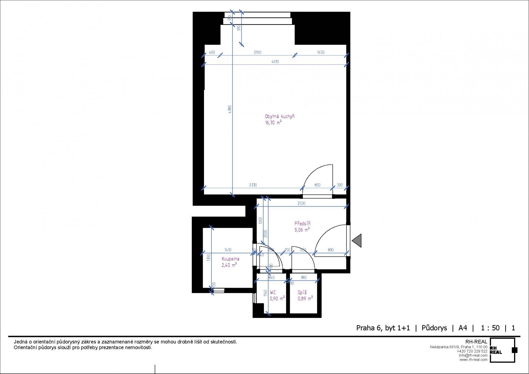
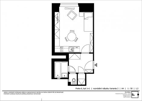
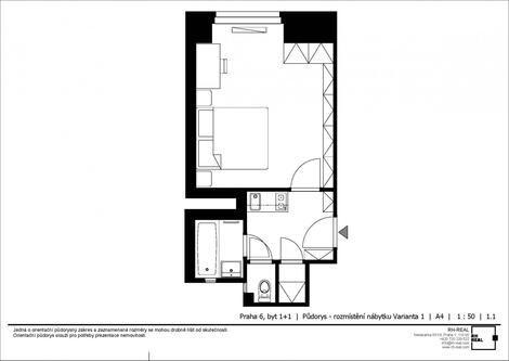
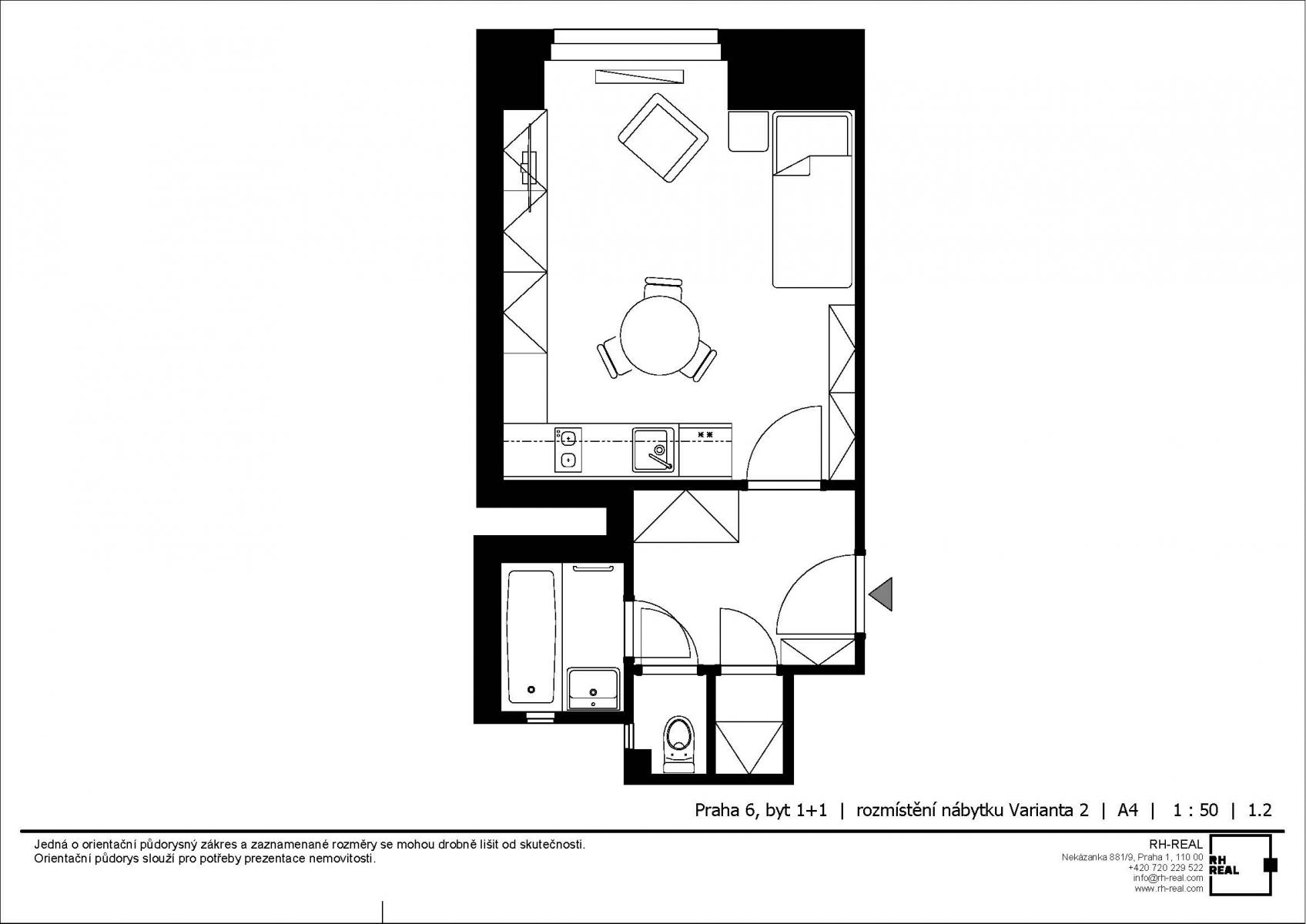
Nabízíme Vám byt 1+0 o celkové výměře 26 m² v atraktivní rezidenční čtvrti Praha 6 Bubeneč, v klidné ulici Zelená. Byt se nachází v 1. podzemním podlaží (polo-suterén) cihlového bytového domu č.p. 945, který je kompletně podsklepen. Jedná se o polo-suterén, kdy velké okno je z pohledu vnitrobloku těsně nad terénem i přesto je byt velmi světlý a tichý díky orientaci do vnitrobloku. Okna jsou špaletová, modernizovaná s jednosklem a dvojsklem ve venkovní části. Příjemnou dispozici podtrhuje oddělená toaleta od koupelny a standartní výška stropu. Dům samotný je v dobrém a udržovaném stavu - je vidět, že se SVJ snaží - kamerový systém, udržovaný vnitroblok a čisto. Výhodou je velmi dobrá dopravní dostupnost a blízkost Vysoké školy technické (ČVUT Dejvice). Dispozice: Pokoj: 18,0 m² Předsíň: 3,8 m² Koupelna: 2,4 m² WC: 0,9 m² Komora: 0,9 m² Celková plocha s příslušenstvím: 26,0 m² Byt je ve stavu před rekonstrukcí ideální volba pro investory nebo kupující, kteří chtějí vytvořit bydlení přesně podle svých představ. Je třeba počítat s celkovou rekonstrukcí včetně řešení drobné vlhkosti zdiva (orientační průzkum vlhkosti a koncepce sanace celého domu od Ing. Michaela Balíka, CSc., 09/2023 jsou k dispozici). Více informací poskytneme na prohlídce. Info: V bytě je momentálně do konce měsíce 06/2026 nájemnice a prohlídky budou tomu přizpůsobeny. <a href="https://www.eurobydleni.cz/byty/3_kk/praha-5/obec-lipence/prodej/"><strong>Prodej bytu 3+kk Praha 5, Lipence</strong></a>
Prodej bytu 1+kk, 34 m2, lodžie, Praha 6 - Ruzyně.
Nabízíme Vám postoupení družstevního bytu 1+KK o výměře 34 m2 s lodžií 5,3 m2 v 5. nadzemním podlaží cihlové novostavby moderní Rezidenci U Šárky,…
Prodej luxusního bytu 1+KK v novostavbě v Kobylisích, ul. Pakoměřická.
Dovoluji si Vám nabdnout luxusně zpracovaný a zbrusu nový byt 1+KK v druhém podlaží (od terénu) velmi povedené novostavby v žádané části Prahy 8 -…
Prodej bytu 1+kk Praha 6, Bubeneč na Eurobydleni.cz